jollyoo全家福相框定制照片制作挂墙中式复古婚纱照加

高清图片下载 免费 安全无风险
jollyoo全家福相框定制照片制作挂墙中式复古婚纱照加

jollyoo全家福相框定制照片制作挂墙中式复古婚纱照加

点击图片查看原图

图片信息

  • 格式: JPG
  • 尺寸: 790x1100
  • 大小: 约1.2MB

版权声明

相关标签

自然风光 高清壁纸 4K画质

分享图片

相关推荐

基于当前图片的相似推荐

rapper周密个人资料简介年纪多大了 父亲和爷爷是谁家庭背景多有钱

rapper周密个人资料简介家庭背景起底 和周芯竹年龄差几岁 - 知平

因妻怕疼24年不要孩子不让老婆进厨房孙松到底爱侯继林啥

90婚介所周密周芯竹终于官宣了在一起周密爷爷是谁个人资料家庭背景

演员何冰为何结婚25年0绯闻看看妻子是谁就知道了

千亿儿媳徐子淇上位手段狠8年生4胎生一个儿子奖励10亿

他出卖祖国成英国间谍中英谈判期泄露国家机密潜伏14年终被抓

蓝琼缨不仅在港澳留下了重要的后招,而且策划的相当周密.

周密的家庭背景怎么样爷爷是谁cj个人信息是富二代吗父母做什么

追风者高能反转魏若来反杀嫁祸签名伏笔揭秘

美金就是另一方提供的报酬,经过周密的调查,终于在2005年,专案组将

随机推荐

发现更多精彩图片

显卡天梯图cpu天梯图).

我家那小子钱枫减肥21斤拍时尚大片六块腹肌显型男魅力

张柏芝轮流给儿子过生日,明星孩子都如何过生日?

【弹丸论破】苗木困

快速子母缸 油压机快速缸 缸径220行程300 液压焊接油缸 可定制

著名男高音歌唱家蒋大为与第二炮兵政治部文工团青年歌唱家王喆做客

原创刘在石在韩流遭炮轰主动邀请总统上综艺导演知道后提前离开

周瑜简笔画儿童版 - 抖音

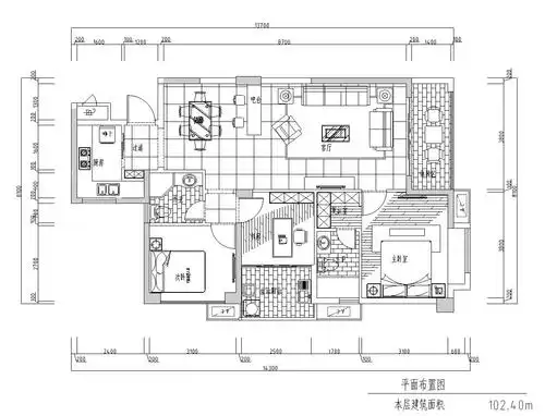
三居室现代样板房室内施工图设计

原筑江南公馆项目资料

海城市无偿献血办公室