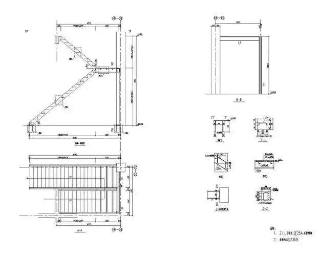
楼梯的常用数据与计算方法(值得收藏)

高清图片下载 免费 安全无风险
楼梯的常用数据与计算方法(值得收藏)

楼梯的常用数据与计算方法(值得收藏)

点击图片查看原图

图片信息

  • 格式: JPG
  • 尺寸: 416x428
  • 大小: 约1.2MB

版权声明

相关标签

自然风光 高清壁纸 4K画质

分享图片

相关推荐

基于当前图片的相似推荐

安全设施现场平面布置图等,可编辑使用|cad|平面图|详图_网易订阅

99设计师都需要的楼梯cad节点详图合集

《22g101-2》使用时容易忽视的几个问题_楼梯_图集_mm

楼梯详图一般分建筑详图与结构详图,应分别绘制并编入建筑施工图和

楼梯的细部构造有哪些?

99设计师都需要的楼梯cad节点详图合集

精品教程 | cad布局出图教程(下)

标准的旋转楼梯施工图——4步轻松画出来!_平面图_推敲_进行

楼梯的细部构造有哪些?

[分享]cad绘制楼梯资料下载

楼梯平法5--认识三跑,四跑及剪刀楼梯_平面图_剖面图_张向荣

钢楼梯结构图纸资料下载-多种钢结构楼梯施工图 (cad)

随机推荐

发现更多精彩图片

杨幂机场不戴墨镜的原因找到了

4亿美金票房神作《尖峰时刻》回归,继续搭档克里斯·塔克

【创意致远】我的英文字母会说话——二年级英文字母创意画

494_496gif 动态图 动图

748kb - jpeg新版--陕西地图1744x2573 - 812kb - jpeg陕西地图全

小鲜肉鹿晗《择天记》陈长生剧照高清桌面壁纸

武汉普瑞眼科医院谢娇主任在线解答_眼睑_腺体_症状

绯红女巫 elizabeth olsen 9215 676767

新房卫生间这样装修真的美爆了!连上厕所都是一种享受

毕竟,黑人只是黑人,而不是56个民族的炎黄子孙.

方法一:儿童画牛简笔画的画法

天王手表八成新380元