温泉泡池节点图资料下载-暖通通用节点图cad

高清图片下载 免费 安全无风险
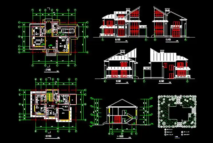
温泉泡池节点图资料下载-暖通通用节点图cad

温泉泡池节点图资料下载-暖通通用节点图cad

点击图片查看原图

图片信息

  • 格式: JPG
  • 尺寸: 2400x1800
  • 大小: 约1.2MB

版权声明

相关标签

自然风光 高清壁纸 4K画质

分享图片

相关推荐

基于当前图片的相似推荐

[分享]砖混车库cad图资料下载

[分享]住宅建筑图纸cad资料下载

教学综合楼施工图纸资料下载-6层中学教学综合楼混凝土结构施工图(cad

[分享]施工手册cad资料下载

住宅图纸下载资料下载-40套多高层住宅楼安置楼公寓建筑图纸cad

[分享]三层别墅cad结构图资料下载

cad图库大全免费下载http://cad.xjpdf.com/dailypic.html

海量cad机械图纸,图库资源无限制(免费下载)

[分享]小型酒店设计cad平面图资料下载

cad图库大全免费下载http://cad.xjpdf.com/dailypic.html

分享cad轻钢别墅装修施工图资料下载

[分享]沙发cad图纸资料下载

随机推荐

发现更多精彩图片

"幡然醒悟"的袁咏仪,撕开了娱乐圈的遮羞布

小动物的可爱情侣头像93

可爱卡通闺蜜头像两人 | 超可爱二次元闺蜜头像_手机搜狐网

大写数字的使用始于明朝.

海洋探险儿童剧海底小纵队6潜艇计划

陈奕迅翻唱的一首粤语歌曲,由黄伟文作词,陈佳明作曲,原唱是许美静

【方应看x你】生辰之礼 短车.

卡通小人简笔画卡通小人物简笔画可爱

内搭单穿都好看上身显瘦又气质