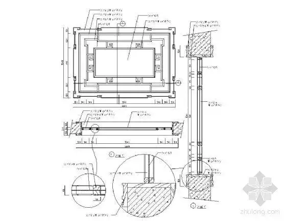
cad源泉设计教程之窗户的绘制

高清图片下载 免费 安全无风险
cad源泉设计教程之窗户的绘制

cad源泉设计教程之窗户的绘制

点击图片查看原图

图片信息

  • 格式: JPG
  • 尺寸: 640x423
  • 大小: 约1.2MB

版权声明

相关标签

自然风光 高清壁纸 4K画质

分享图片

相关推荐

基于当前图片的相似推荐

原来还可以这样画窗还要cad设计师干嘛

[分享]平开窗cad图资料下载

cad源泉设计教程之窗户的绘制

分享中式花格窗cad图资料下载

门窗通用节点图2017(cad)

[分享]铝窗cad大样资料下载

老乡鸡快餐厅cad图纸

[分享]平开窗cad图资料下载

[分享]cad阳台窗户资料下载

随机推荐

发现更多精彩图片

你是我的城池营垒 马思纯,白敬亭携手演绎《你是我的城池营垒》,甜蜜

可爱呆萌女生微信头像_腾讯新闻

周柏春逝世,上海滑稽戏再失泰斗

沙雕闺蜜头像来一波哈xswl

lol英雄联盟 暗裔剑魔 亚托克斯 aatrox 4k壁纸

小猪佩奇和朋友们一起滑雪橇

【越调】舌战群儒 2/2_申凤梅_高音质在线试听_【越调】舌战群儒 2/2

美术生 #消防员 #致敬消防员 #速写人物小淼11-25回复致敬查看

梅赛德斯-amg gle车型中,gle 53