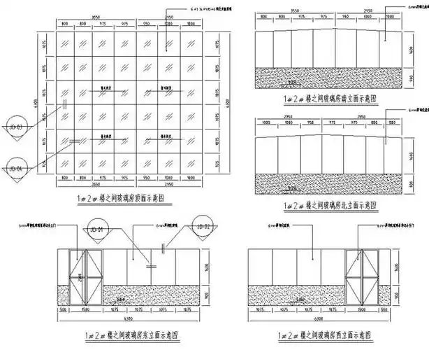
图纸包括: 全玻璃结构房平面图,全玻璃结构房玻璃夹平面布置图

高清图片下载 免费 安全无风险
图纸包括:    全玻璃结构房平面图,全玻璃结构房玻璃夹平面布置图

图纸包括: 全玻璃结构房平面图,全玻璃结构房玻璃夹平面布置图

点击图片查看原图

图片信息

  • 格式: JPG
  • 尺寸: 560x477
  • 大小: 约1.2MB

版权声明

相关标签

自然风光 高清壁纸 4K画质

分享图片

相关推荐

基于当前图片的相似推荐

匿迹于森林深处的玻璃小屋平面图

70㎡改造公寓,通过玻璃隔断,创造通透感

玻璃书住宅 / sibling architecture,首层平面图

上海,垂直玻璃屋 / 非常建筑 atelier fcjz,二层平面图

某玻璃阳光房详细结构施工图cad

三面玻璃房 德国"房屋的缩影"

石洞与玻璃面紧密衔接的通透住宅

某玻璃阳光房详细结构施工图cad

完美采光的89㎡,你和它只差一个落地玻璃窗户的距离

石洞与玻璃面紧密衔接的通透住宅

封前后阳台大玻璃弧形一共4w

随机推荐

发现更多精彩图片

他娶过郝蕾,爱过王珞丹,负了殷桃,没想到38岁时娶了小12岁的她

简谱好听的歌_很好听的歌简谱

(完整版)信纸(a4横条直接打印版)(最新整理)

手冲咖啡过滤杯三孔陶瓷过滤器滴漏式咖啡滤纸手冲杯三眼过滤杯大号24

直筒羽绒裤女外穿高腰加绒加厚棉裤冬休闲户外运动裤潮束脚裤宽松

我真是越来越美了 - 斗图表情包 - 爱逗图

简笔画入门动物狂欢会

p>nike sportswear essential 女子短袖上衣是耐克品牌旗下的一款

20种小清新刺绣作品,用针线"绘制"的治愈系手工