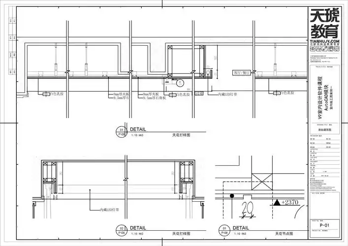
天花吊顶节点图

高清图片下载 免费 安全无风险
天花吊顶节点图

天花吊顶节点图

点击图片查看原图

图片信息

  • 格式: JPG
  • 尺寸: 1440x1020
  • 大小: 约1.2MB

版权声明

相关标签

自然风光 高清壁纸 4K画质

分享图片

相关推荐

基于当前图片的相似推荐

室内标准天花节点大样详图合集施工图下载

乳胶漆与不锈钢天花做法

[天花节点 009]吊顶挡烟垂壁剖面详图.#cad制图 #c - 抖音

铝方通与石膏板交接天花吊顶节点大样图分享 分享一种铝方通

大样施工图-天花大样图

全网最相信天花吊顶剖切面大样图5

第十二课 绘制天花大样图

第十二课 绘制天花大样图

现代木饰面吊顶天花节点图施工图下载【id:257308896】

随机推荐

发现更多精彩图片

女士发型别乱剪,想美就选露耳短发,好看时尚不夸张

全国政协委员,湖北首义律师事务所主任谢文敏,宣传《民法典》 一直在

素描几何体结构详解,其实就这么简单!_素描入门_零二七艺考

16新款性感诱惑仿真丝女夏丝绸吊带睡衣睡裙甜美真丝睡裙时尚

pam8403/cs8403小功率3w双声道d类音频功放【耳机】电路图

艾狮安全揭面盔男士女摩托车头盔全盔电动车个性四季夏季蓝牙机车

回顾留学生魏巍在日本参与灭门案被判死刑国际组织出面相救

批发空心山楂 独立小包装散装山楂脯批发 果脯蜜饯 10斤起售

新年传统手工汉服竹丝油纸灯笼(行灯)手绘剪纸发光手提结婚

走进《隐秘的角落》取景地的赤坎老街,身临其境,感受一下这座繁华的

极简手绘穿裙子的酷girl