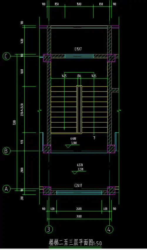
楼梯间休息平台宽度理解建筑专业

高清图片下载 免费 安全无风险
楼梯间休息平台宽度理解建筑专业

楼梯间休息平台宽度理解建筑专业

点击图片查看原图

图片信息

  • 格式: JPG
  • 尺寸: 920x651
  • 大小: 约1.2MB

版权声明

相关标签

自然风光 高清壁纸 4K画质

分享图片

相关推荐

基于当前图片的相似推荐

大理石楼梯的设计与测量

定做阁楼楼梯家用室内实木梯整体楼梯平台楼梯防腐木梯转角木梯子

楼梯面积是计算的休息平台面积,楼层平台面积不计算在内嘛,我问了很多

请问三跑楼梯中的平台板和休息平台是哪里见下图

像我这样的空间,能设计出楼梯中间休息平台下过人吗?

请问这个楼梯休息平台的长度是多少啊

半自动促销复式别墅小阁楼伸缩楼梯钢木家用室内隐形折叠升降扶手

老师 楼梯投影面积要加上梯梁 楼梯休息平台吗?楼梯怎么计算面积?

最舒适的楼梯踏步尺寸

4,对于室内楼梯,为了节省空间,经常还有不设休息平台的做法,就是把

了解楼梯间各楼层平台,休息平台面的标高:楼层平台标高分别为3m,6 m,9

楼梯间休息平台宽度理解

随机推荐

发现更多精彩图片

91大神视频女主盘点:大部分是女大学生,有些颜值惊人

妹妹找哥泪花流化生学院观看电影小花

篮球教练杨鸣发文宣布离婚:和平解除婚姻关系

不愧是小猛禽福特ranger改装后竟然比大哥f150猛禽还霸气

小身体,大秘密 | 实验与观察:进行实验并观察了解昆虫的身体构造,口器

多次重返陕北黄土高坡 迷恋拍摄靖边丹霞地貌

宝马 宝马7系 2021款 740li 领先型 m运动套装图片

炸串设计图__广告设计_广告设计_设计图库_昵图网nipic.com

创意素描的一些技巧

一门到顶的奶茶灰衣柜|有颜值有品质