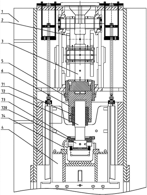
ept系列气动压力机规格型号及结构尺寸

高清图片下载 免费 安全无风险
ept系列气动压力机规格型号及结构尺寸

ept系列气动压力机规格型号及结构尺寸

点击图片查看原图

图片信息

  • 格式: JPG
  • 尺寸: 830x500
  • 大小: 约1.2MB

版权声明

相关标签

自然风光 高清壁纸 4K画质

分享图片

相关推荐

基于当前图片的相似推荐

曲柄压力机的结构及工作原理

第2篇锻压设备的修理第18章摩擦压力机的修理

电动螺旋压力机的演化历程

第二章_曲柄压力机ppt

杆机构和螺旋机构的伺服压力机结构如图1,2所示

全世界17台万吨以上曲柄热冲压力机,这个企业生产了8台

冲床,华源供应j21-125t可倾固定台深喉口电动国标普通压力机冲床

锻造常用设备热模锻压力机

新型压力机 本技术涉及压力机结构

压力机-厂家直销优质手动压力机-齿轮齿条式手动压力

(完整版)曲柄压力机的技术参数及选择

本实用新型涉及压力机结构领域,尤其涉及其中传动部件的改进.

随机推荐

发现更多精彩图片

montblanc x 朱亚文 万宝龙 探寻旅者香水

浅试一下优衣库u.#图文伙伴计划 #风衣 #男生穿搭 #优衣 - 抖音

世界上最时尚的9位第一夫人

一块五角文竹长高了

乌干达最丑男靠脸吃饭娶二妻

1原创作品摄影美食摄影创意摄影美食静物摄影石榴突尼斯石榴水果电商

他因为运气太好导致现在一直红不起来—德云群英之孔云龙

沙雕搞怪五人专用头像

黄岩人民的公园九峰公园

高颜值拉杆箱万向轮26寸旅行箱皮箱子出国留学托运箱包29寸密码箱出口

迷你世界黑龙成为坐骑这也太帅了吧怎么才能获得呢