如果有一天我们不再联系了说的心疼

高清图片下载 免费 安全无风险
如果有一天我们不再联系了说的心疼

如果有一天我们不再联系了说的心疼

点击图片查看原图

图片信息

  • 格式: JPG
  • 尺寸: 640x426
  • 大小: 约1.2MB

版权声明

相关标签

自然风光 高清壁纸 4K画质

分享图片

相关推荐

基于当前图片的相似推荐

不联系,再真的感情也会变淡

好朋友不联系就淡了,人生就是如此吗?

感情久不联系也就淡了

在合适的两个人,如果不去关心,慢慢就淡了.再深的感情不去呵护 - 抖音

扎心情感语录两个人长时间不联系感情也就淡了没有了共同的话题没有了

就会渐渐散去你不言,我不语,最后成了无话可说再好的感情,不联系也会

有一种关系,叫不删除不联系不拉黑

夜听感情就是这么变淡的

两个人不联系了谁会先忍不住

致不经常联系的朋友,虽然淡了联系,但是从未忘记

林徽因曾写道:有些人渐渐的不联系了不是淡了远了,而是因为没有合适的

随机推荐

发现更多精彩图片

超模何穗大秀性感身材,穿内衣拍写真 何穗身穿橙色针织短裙, 秀出

bmoi儿童雪纺公主裙女连衣裙夏装新款宝宝超漂亮粉色洋气3612岁小女孩

明治草莓牛奶壁纸少女心壁纸

去的话第五人格约瑟夫总裁判长卡尔dd—.

青岛七中:承继辉煌历史,启航教育新篇

战争海报背景图片下载_免费高清战争海报背景设计素材_图精灵

7万115㎡简欧三房装修香格里拉--欧式风格

娜美×自截头像|开怀大笑的航海士

安次区专业建筑结构改造加固打孔植筋开门洞碳纤维加固

一些笨蛋东方曜难得の乱杀

拿出前段时间买的香菜种子,准备利用泡沫箱给香菜播种.

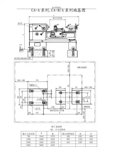
ca6140普通车床地基图 (1)