8 写美篇还是把敦煌莫高窟画册中,由考古学家拍摄石窟内泥塑和壁画拍

高清图片下载 免费 安全无风险
8 写美篇还是把敦煌莫高窟画册中,由考古学家拍摄石窟内泥塑和壁画拍

8 写美篇还是把敦煌莫高窟画册中,由考古学家拍摄石窟内泥塑和壁画拍

点击图片查看原图

图片信息

  • 格式: JPG
  • 尺寸: 1334x1000
  • 大小: 约1.2MB

版权声明

相关标签

自然风光 高清壁纸 4K画质

分享图片

相关推荐

基于当前图片的相似推荐

自1943年他举家迁至莫高窟,直到1982年离开,在莫高窟一间土坯房里一住

敦煌莫高窟来武汉了

门外图片介绍——这是对外开放的四个大窟中的一个卧佛

99地址:武汉大学万林博物馆#万林艺术博物馆 #敦煌 #敦煌莫高窟

武汉大学 #武汉拍照虽然佛窟没有之前展览精致,但是一楼的卧佛很壮观

卧佛 面露慈祥静静地卧在博物馆里 十分震撼二楼是一些还原莫高窟的

世界文化遗产# 莫高窟158窟中唐彩塑涅槃卧佛像

盛唐-敦煌39窟:中心柱东向面龛内:弥勒倚坐塑像【553x868】盛唐莫高窟

8 写美篇还是把敦煌莫高窟画册中,由考古学家拍摄石窟内泥塑和壁画拍

莫高窟第148窟 卧佛莫高窟第158窟 卧佛第148,158窟分别造出了长达14

随机推荐

发现更多精彩图片

中国古风图片,中国古风图片壁纸,中国古风图片电脑桌面壁纸,艺术壁纸

oppo壁纸在日本推出opporenoa手机内置原生壁纸

你们觉得女生把脑袋后面的头发剃了怎么样?

龙珠;"傲娇王子" 贝吉塔;(*^ω^*)

情侣头像高冷霸气图片真人浪漫情侣高清头像图片唯美大全

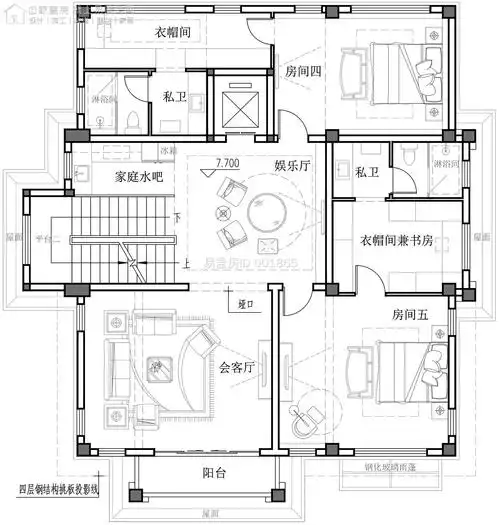
别墅△一层平面图(左侧为北) 一层以待客休闲功能为主,设计师根据业主

nike 耐克 哈达威 喷泡 南海岸泡 真炭 原盒 原标

乐高9656大颗粒教具积木 大力锤 搭建步骤

韩剧doctors什么时候更新,一周更新几集,一共多少集

非常酷炫中国9吨级暴龙反恐防暴装甲车续航能力强

夏天高温吹风扇女孩元素手绘