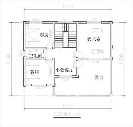
7x8米农村二层小别墅图纸,宅基地小一样住得好_建房常识_房屋设计

高清图片下载 免费 安全无风险
7x8米农村二层小别墅图纸,宅基地小一样住得好_建房常识_房屋设计

7x8米农村二层小别墅图纸,宅基地小一样住得好_建房常识_房屋设计

点击图片查看原图

图片信息

  • 格式: JPG
  • 尺寸: 750x1025
  • 大小: 约1.2MB

版权声明

相关标签

自然风光 高清壁纸 4K画质

分享图片

相关推荐

基于当前图片的相似推荐

新农村自建房 7米x12米 不是每个人都有一亩宅基地

农村自建房图纸为什么选择盖户型6最多别致带夹层大气中空农村三层

4,建房设计7x11宅基地该怎样设计

最经典的二层农村小户型别墅设计图7x14米美观造价也低你不打算建一套

乡村住宅在线平台实力建房图纸:5000 份设计单位:100 家别墅企业:35

农村自建房开间7米进深13米,该怎么设计?

9套农村自建别墅户型设计,经典实用,接地气看过的人都说设计的好

强烈推荐五款农村自建房设计,看完之后只剩羡慕_盖房知识_图纸之家

占地不足百平米7x10米精致小面宽别墅全图视频展示

12x10米三层农村建房图纸,室内布局合理大气

7x20米农村小院,7室2厅,经济田园!

随机推荐

发现更多精彩图片

每一双眼睛,楚楚动人浅浅的调子把人物塑造很生动笔下的美少女清新

唐嫣同汉服玉簪桃花款粉疏影未央李未央锦绣未央暗香发饰

萌萌可爱的baby宝宝图片 - 第5张

组图:刘海蓝演绎清爽盛夏风 笑容甜美清新撩人

转让17年东方红1504拖拉机

钓鱼台珍酿酒 酱香型白酒 商务招待及节日送礼

花菊花蜡烛向一木制的白色和粉红色的菊花白色的和粉红色的菊花和

六倍利什么时候播种

罐装可口可乐330ml*24罐

刚刚成功抢救一例急性下壁心肌梗死合并心源性休克的病人,患者男 - 抖