史可早期的清纯写真,穿修身方领衫搭牛仔裤

高清图片下载 免费 安全无风险
史可早期的清纯写真,穿修身方领衫搭牛仔裤

史可早期的清纯写真,穿修身方领衫搭牛仔裤

点击图片查看原图

图片信息

  • 格式: JPG
  • 尺寸: 535x795
  • 大小: 约1.2MB

版权声明

相关标签

自然风光 高清壁纸 4K画质

分享图片

相关推荐

基于当前图片的相似推荐

史可上阳赋备受赞赏当年她因何不敌巩俐错失红高粱

史可早期的清纯写真,穿修身方领衫搭牛仔裤

史可奔六年纪风韵犹在穿夹克缝荷叶边点缀霸气不失精致

捍卫者杀青车永莉史可针尖对麦芒

史可个人资料(史可:人生越洒脱,才能走得越长久) | 说明书网

51岁史可近照演了多年母亲角色仍风姿绰约颜值不输当年气色好

史可早期的清纯写真穿修身方领衫搭牛仔裤凸出的小肚子好真实

史可和巩俐谁演《红高粱》,张艺谋不是靠扔硬币决定的

著名女星史可:洋儿媳难当,我有4个公公婆婆

史可个人资料(史可:人生越洒脱,才能走得越长久) | 说明书网

随机推荐

发现更多精彩图片

那些年仙剑走出来的彭于晏,唐钰小宝你在等你的阿奴吗_上海_活动_北京

杨幂耳朵边有没有痣_杨幂耳朵面相_杨幂耳朵对比

别看现在的宋丹丹"挺随性",当年的她美到倪萍都被比下去了

贾玲瘦身后惊艳亮相,大波浪卷发 露肩黄色开叉礼服,美出新高度 - 聚缘

怀旧纸张背景png图片素材下载_纸张png_熊猫办公

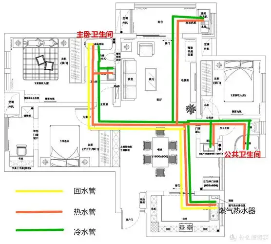
一张图带你了解小循环水管走线

出售闲置全新手摇式轮椅三百元,买了一次没用过,非诚

灌篮高手 樱木花道简笔画.#简笔画 #一学就会系列 - 抖音

法国和西班牙联合打造最新型常规潜艇,装备绝对安全的隔离舱段

世界之最 植物之最 世界上十种最美的玫瑰花 "玫瑰皇后"排第二多花