帝王鸽舍-林波尔奇迹x林波尔公牛

高清图片下载 免费 安全无风险
帝王鸽舍-林波尔奇迹x林波尔公牛

帝王鸽舍-林波尔奇迹x林波尔公牛

点击图片查看原图

图片信息

  • 格式: JPG
  • 尺寸: 1000x750
  • 大小: 约1.2MB

版权声明

相关标签

自然风光 高清壁纸 4K画质

分享图片

相关推荐

基于当前图片的相似推荐

林波尔原棚_相册_立刚鸽舍 - 赛鸽资讯网

林波尔-云南天翼鸽舍-中信网爱鸽商城

林波尔-雪松鸽舍王乐-中信网爱鸽商城

北京峰源鸽舍---林波尔快速王512配招牌斑母直孙

林波尔_文体鸽舍_ ag188.com爱鸽商城_中国信鸽信息网

林波尔237-张德鸽舍-中信网爱鸽商城

林波尔奇迹32家族_双龙兄弟鸽舍_ag188.com爱鸽商城_中国信鸽信息网

北京建辉鸽舍 林波尔法拉利血统

超级种雄《林波尔》-大连良子鸽业-中信网各地鸽舍

【顶级林波尔】 保证金级 拍卖

林波尔系种鸽_河间市宏伟鸽舍_ ag188.com爱鸽商城_中国信鸽信息网

随机推荐

发现更多精彩图片

半扎丸子头发怎么扎洋气(今年最流行的半扎丸子头)(4)

肖战玉骨遥##肖战时影##肖战

板寸头-寸头发型-男士寸头发型图片 第3页

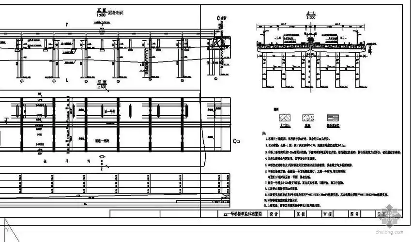
某大桥25m简支梁设计图纸

王俊峰 陈洁 贺伟华 陈建忠 韩艳秋履新

实际上人家可是爱鸽人士眼中的"鸽界超模",也经常在最美鸽子评选中名

贵阳市花溪区第二实验小学

哇谜亚星和帝蒂娜好有爱啊

又是吃西瓜的季节辣:з情侣头像呀