惠威音箱图纸

高清图片下载 免费 安全无风险
惠威音箱图纸

惠威音箱图纸

点击图片查看原图

图片信息

  • 格式: JPG
  • 尺寸: 720x578
  • 大小: 约1.2MB

版权声明

相关标签

自然风光 高清壁纸 4K画质

分享图片

相关推荐

基于当前图片的相似推荐

69 音箱diy论坛 69 diy 8寸惠威ss8iir低音炮求图纸和造型 sgljb

朋友给了我2只8寸惠威喇叭,今天我根据参数设计了图纸 这个只是先

《无线电》的惠威8寸音箱评比 得奖的-2次倒相 超低音音箱图纸,做了一

diy制作求助谁有惠威d68的实测参数可以分享一下ztf老大有吗附上我的

[diy制作] 新开一贴,骚一下最近在做的一个惠威音箱

请教diy的音箱拿下倒相管后低频增强是什么原因

惠威科技-hivi 惠威 环绕 音箱套件-diy5.1r

哪位大侠有惠威6.5二分频的音箱图纸?

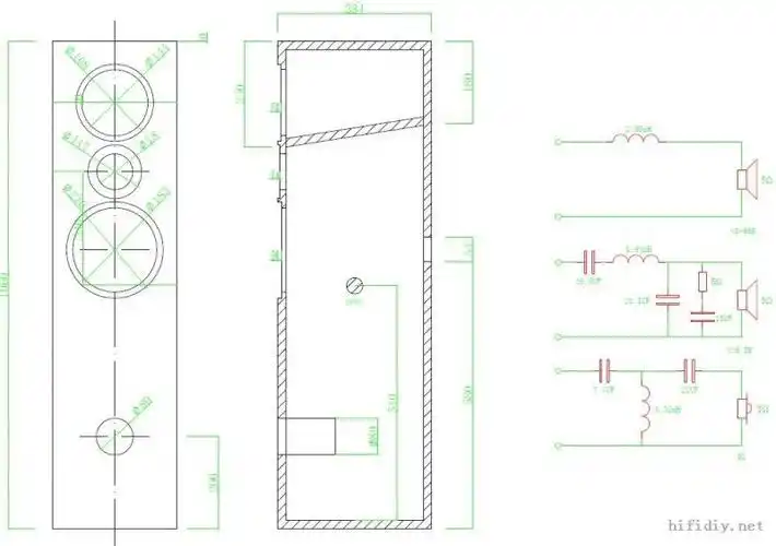
分享两套惠威落地音箱图纸(矢量高清版)

随机推荐

发现更多精彩图片

摩根大通(jpmorgan)的策略师们在关于这个问题的声明写道:"机构投资者

作为a380机长是种怎样的体验?|飞机|澳洲航空|汉莎|飞行员_网易订阅

内墙乳胶漆室内自刷墙面白色彩色墙漆无甲醛无味粉色油漆涂料家用 脏

十二生肖戌狗粘土制作教程来了

咖啡馆的名字,让小怪一下子就联想到了《哈利·波特》中,通往霍格沃茨

我们在村口 有一个老房子里面放了很多老家居有七十年代的有六十年代

继续画出一只后腿和长条状的蛇头,蛇尾,蛇头画一个圆圈作为眼睛和玄武

多张高达3视图感兴趣的下了

任嘉伦顾川##任嘉伦周生辰

青段泥梵莲140cc球孔出水