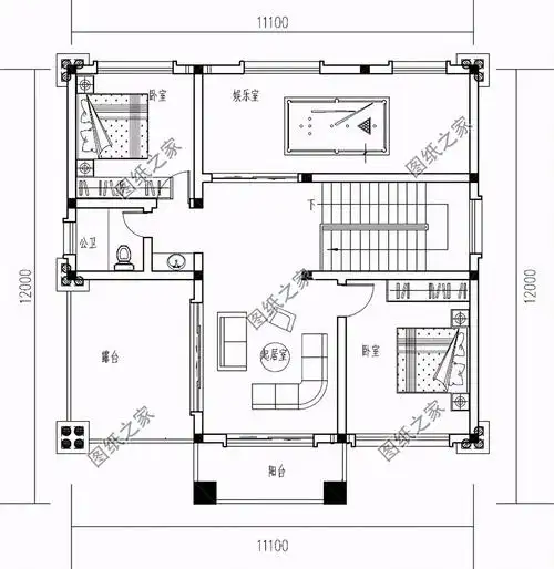
造型美观漂亮_二层别墅设计图_图纸之家

高清图片下载 免费 安全无风险
造型美观漂亮_二层别墅设计图_图纸之家

造型美观漂亮_二层别墅设计图_图纸之家

点击图片查看原图

图片信息

  • 格式: JPG
  • 尺寸: 750x943
  • 大小: 约1.2MB

版权声明

相关标签

自然风光 高清壁纸 4K画质

分享图片

相关推荐

基于当前图片的相似推荐

两层农村自建二层楼设计图纸,面宽12米左右_二层别墅设计图_图纸之家

10x12米二层房屋设计图,诠释农村房子应该怎么建_盖房知识_图纸之家

农村二层自建别墅设计图,精致典雅,户型简单合理_盖房知识_图纸之家

乡村住宅在线平台实力建房图纸:5000 份设计单位:100 家别墅企业:35

8*11.5米,简欧两层乡村自建别墅全套设计图纸 - 乡村住宅在线

人别墅图纸更多风格:全部欧式美式田园中式现代层数:一层二层两层半三

图纸之家#带阁楼的农村二层别墅设计图(二层半),欧式风格,外观时尚

设计图符合年轻人的审美,个性不张扬,洒脱不随性_盖房知识_图纸之家

带车库的二层l型别墅设计图纸及效果图_l型农村别墅设计图_图纸之家

欧式别墅设计图,足够一家人使用,户型紧凑功能齐全_盖房知识_图纸之家

超级好看的现代风格两层小楼图,清新优雅_二层别墅设计图_图纸之家

图纸之家网的优惠券大全—欧式两层农村自建房设计图纸大气豪华二层

随机推荐

发现更多精彩图片

盘点这些八零后的女明星你都喜欢谁?个个倾国倾城_杨幂_漂亮_身影

风景速写|纯艺术|绘画|孤独的灵魂者 - 临摹作品 - 站酷 (zcool)

启蒙兼容乐高积木雷霆使命维和部队益智拼装军事坦克飞机模型玩具

第一季的萌娃现状如何,石头天天一米八_王诗龄_kim_小时候

繁华都市香港摩天大楼夜晚天际线

美文 春意盈盈柳丝长 春天来了,柳树发芽.

5个关键词带你游遍青岛·市南

来嘞!#188男团 #谁把谁当 - 抖音

上传时间:2020-01-04 13:31:49

手持式 m134 加特林机枪

血族手游阵容组合推荐之暗系最强阵容