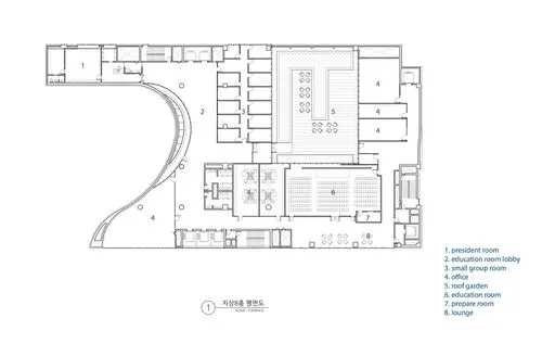
教堂|空间|家装设计|童年sir - 原创作品 - 站酷 (zcool)

高清图片下载 免费 安全无风险
教堂|空间|家装设计|童年sir - 原创作品 - 站酷 (zcool)

教堂|空间|家装设计|童年sir - 原创作品 - 站酷 (zcool)

点击图片查看原图

图片信息

  • 格式: JPG
  • 尺寸: 1280x1424
  • 大小: 约1.2MB

版权声明

相关标签

自然风光 高清壁纸 4K画质

分享图片

相关推荐

基于当前图片的相似推荐

德国文岑巴赫镇小教堂设计

静默守护追寻乡土根源滩涂边的教堂cwxd建筑事务所

小教堂-建筑方案-筑龙建筑设计论坛

waiuku 小教堂 / jasmax - 建筑 - idzoom | 室内设计师

某城市二层小型教堂建筑设计施工图

教堂设计:聆听圣音的纯白教堂——mary基督教堂

三层教堂建筑施工图纸

教堂|空间|室内设计|童年sir - 原创作品 - 站酷 (zcool)

3层1199平米基督教堂建筑设计施工图纸

建筑案例分享教堂设计

saemoonan弧形教堂爱上帝也爱邻里街坊seoinndesigngroupleeeunseok

随机推荐

发现更多精彩图片

宪法宣誓誓词元素素材

出家人和尚的衣服和尚衣服成人僧服短褂套装男春秋季厚冬季加绒棉麻

最强神奇宝贝前十名,精灵宝可梦最强前十名,宠物小精灵神兽排行榜

原创德军将更换新步枪hk437口径转变成762小口径步枪要被取代

王者荣耀带野王俩字的头像

个人出售18年cadillac/凯迪拉克

亚洲龙的内饰以t字型布局为主,线条很有层次感,也很清晰的进行了功能

美萨门窗共生系列68木铝断桥系统双内平开内倒窗gsawsw68dio

髋关节外展支架支具脱位损伤股骨头术康复固定支具骨盆固定支具