柱子在顶层钢筋的锚固

高清图片下载 免费 安全无风险
柱子在顶层钢筋的锚固

柱子在顶层钢筋的锚固

点击图片查看原图

图片信息

  • 格式: JPG
  • 尺寸: 485x309
  • 大小: 约1.2MB

版权声明

相关标签

自然风光 高清壁纸 4K画质

分享图片

相关推荐

基于当前图片的相似推荐

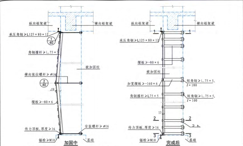
横向张拉单侧预应力撑杆加固框架柱

外包钢加固法,施加预应力加固法以及增加辅助结构等其他加固方法

墙体拐角处构造柱模板加固图

木结构工程施工规范 木梁,柱安装(gb/t 50772-2012)

柱子加固的费用高低受到哪几个方面的影响

承重柱最有效的加固承重柱加固方法有哪些

石家庄市无极县柱子加大截面加固哪家便宜

柱子包钢加固需要多少钱

砌体构造柱加固做法

随机推荐

发现更多精彩图片

头条|不到160的宋慧乔告诉你,只要穿对了,身高都不是事儿

本想在邪帝生日开虐的,可今天上.

上午我一直坐副驾,下午全程换我开车,竟然下雨了.我去

tnt时代少年团 #壁纸分享 #壁纸 #马嘉祺 #时代少年团马嘉祺

按照上图的方式开始进行耐心的按摩.

手绘曾经看过的动漫018聪明的一休彩铅上色

塞维鲁凯旋门 - acfun弹幕视频网 - 认真你就输啦 (?ω?

多肉植物宝莲灯新品月影系容易上色大颗叶层多净化空气趣味特价