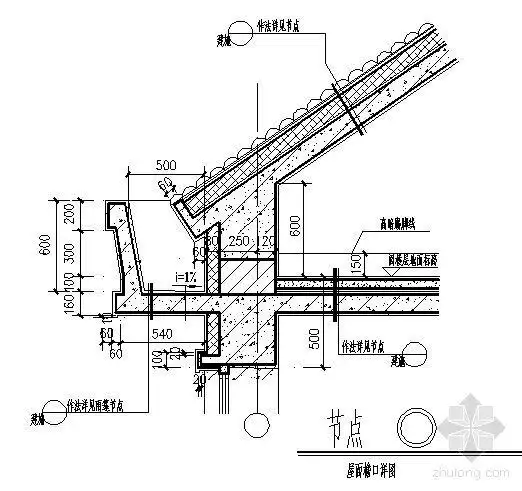
分享坡屋面檐口节点详图cad资料下载

高清图片下载 免费 安全无风险
分享坡屋面檐口节点详图cad资料下载

分享坡屋面檐口节点详图cad资料下载

点击图片查看原图

图片信息

  • 格式: JPG
  • 尺寸: 560x474
  • 大小: 约1.2MB

版权声明

相关标签

自然风光 高清壁纸 4K画质

分享图片

相关推荐

基于当前图片的相似推荐

建筑各种檐口大样cad设计施工图纸

[图块/节点]屋面,檐口,墙身构造集

159个檐口天沟大样节点详图

分享坡屋顶别墅檐口节点详图资料下载

坡屋面檐口节点构造详图

[分享]屋面檐口1资料免费下载

墙面节点详图 挑檐檐沟构造 外挂天沟节点详图 檐口大样 檐口

檐口大样通用节点详图集(10种)

随机推荐

发现更多精彩图片

分类:起名/算命 1条回答 2012-09-03 12:31热心网友 舍得之道 感悟

鲟鱼鱼子酱多少钱一斤(国外25万一勺的鱼子酱) - 价格百科

触不可及,onestepaway,剧照,花絮,桂纶镁触不可及壁纸图片

【p站扒图】天上院明日香(第二弹)

香奈儿真皮床现代简约1.8米双人床大户型主卧高端软包新婚床黑色

绍兴二手宝马x3 2020 款 xdrive28i 豪华套装 黑色 - 小猪二手车

家门口用甲板抬高倾斜30度角多个斜坡走道比别人家的有颜值