埃博拉病毒感染者都被发现生前曾接触过黑猩猩,或者其它哺乳动物的

高清图片下载 免费 安全无风险
埃博拉病毒感染者都被发现生前曾接触过黑猩猩,或者其它哺乳动物的

埃博拉病毒感染者都被发现生前曾接触过黑猩猩,或者其它哺乳动物的

点击图片查看原图

图片信息

  • 格式: JPG
  • 尺寸: 660x440
  • 大小: 约1.2MB

版权声明

相关标签

自然风光 高清壁纸 4K画质

分享图片

相关推荐

基于当前图片的相似推荐

史上最强病毒之一的埃博拉病毒其实是来源于这种动物

一个携带埃博拉病毒的猴子,让整个世界陷入恐慌,《血疫》大结局

至今仍没有辨认出任何动物宿主,目前认为果蝠是病毒可能的原宿主

它们是新冠病毒,埃博拉,狂犬病毒的聚合体,曾被人类认为是恶魔

如果吃一小勺埃博拉病毒会怎样

【卫生检疫】带您了解埃博拉病毒病

埃博拉病毒有多恐怖?

埃博拉病毒怎么消失了当年埃博拉病毒是怎么消失的

它们是新冠病毒,埃博拉,狂犬病毒的聚合体,曾被人类认为是恶魔

cdc警告:警惕这种病毒,和埃博拉一样致死率极高!_马尔堡_版权_疫情

恐怖的埃博拉病毒从哪里来?它是如何感染细胞的?

随机推荐

发现更多精彩图片

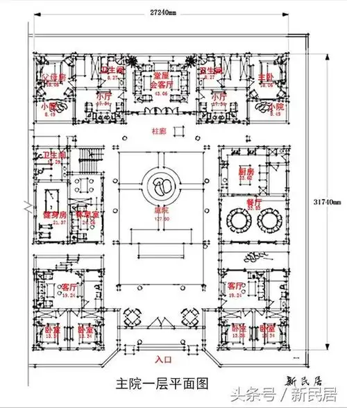
新民居案例带附院的中式四合院

所见最严重的面部蠕型螨皮炎1例

土剧karasevdam #欧美女头

美食汇天下香飘千万家

在白色背景上吃棒棒糖的小男孩

看男颜审美古今更迭→|潘安|丁真|小缸_新浪新闻

群主收钱,我要买个管理

聚龙潭有黑岩和水岩两大岩洞,在近千米的游道中,约四分之一的路程可

张爱玲诞辰百年|走进她比烟花更寂寞的后半生

庞中华钢笔行书字帖