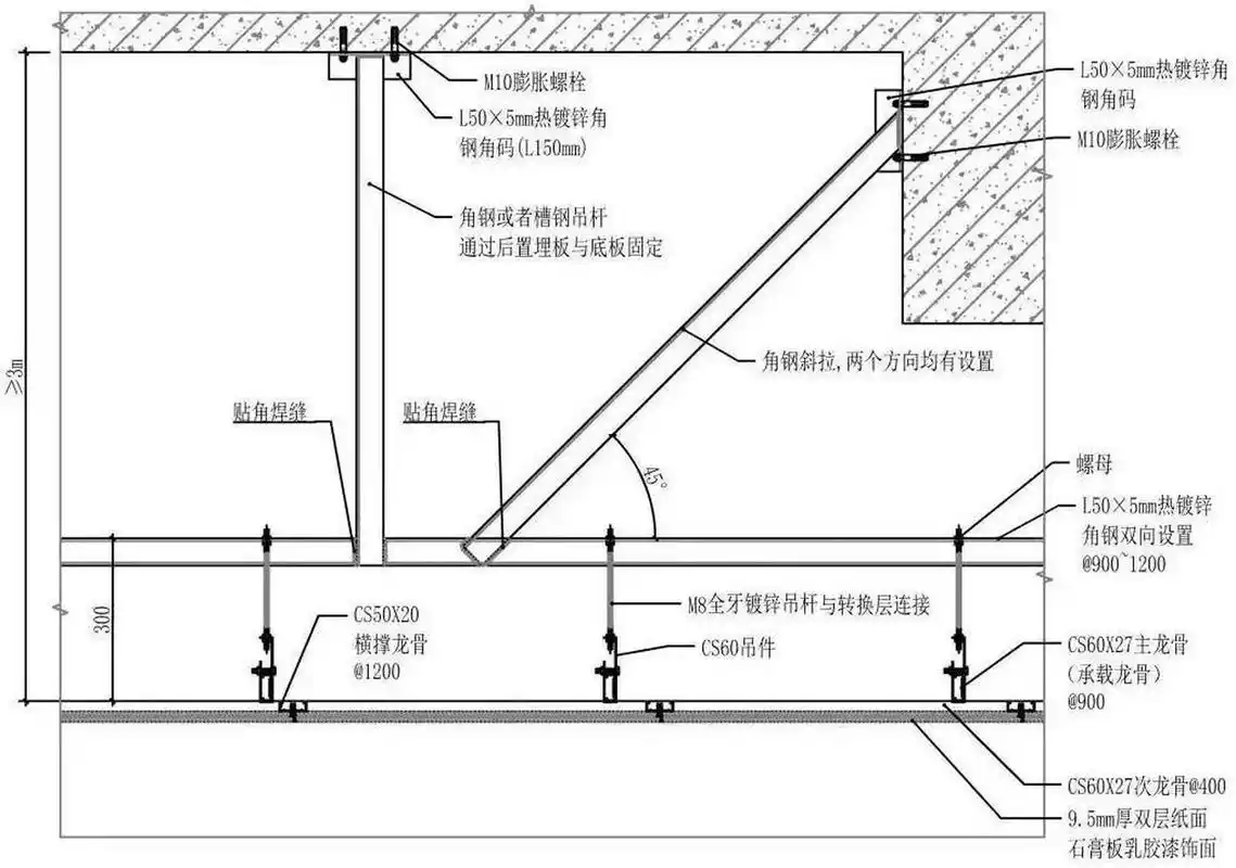
吊顶转换层的标准做法是怎样的

高清图片下载 免费 安全无风险
吊顶转换层的标准做法是怎样的

吊顶转换层的标准做法是怎样的

点击图片查看原图

图片信息

  • 格式: JPG
  • 尺寸: 1084x813
  • 大小: 约1.2MB

版权声明

相关标签

自然风光 高清壁纸 4K画质

分享图片

相关推荐

基于当前图片的相似推荐

吊顶转换层规范要求

转换层(加强层)结构形式及设计要点

湖南长沙长沙找有实力的焊工班组,做钢结构转换层,50*50角

做吊顶丝杆长度超过1.5米就要做转换层,做工地的一定要看看, - 抖音

高层建筑的结构转换层

中空钢结构转换层完成50%

转换层(加强层)结构形式及设计要点

80%的设计师都会搞错的反支撑和转换层,原来是这样的!

03,转换层的标准做法: 03-102钢架转换层 安装注意事项: ① 转换层

7815吊顶钢转换层|反支撑节点详图及说明 适合高大空间的吊顶设计

售楼处转换层施工(精装修)

吊顶钢结构转换层cad节点

随机推荐

发现更多精彩图片

古风男子 古装 美术 原画 男子 古风人物 古代男子 男性 中国风 人物

吴磊个人资料简介及家世介绍吴磊家庭背景惊人是真的吗

自营【古着】chanel 香奈儿 双c标志水钻戒指(水钻) 香槟金(a)(二手)

金星自转一周为何要243天

亲爱的提奥:凡高自传

提花蕾丝黑色长袖塑身衣

全新奔驰glc官图发布,换装c级同款内饰,双外观 双动力是亮点

陈思思和高泰明情感共鸣,揭晓彼此内心秘密,明思组合尘埃落定了

摩托车降挡教学 #摩托车换挡教学

临江门大桥 吉林市松花江畔,有一座宏伟壮观的临江门大桥.这座 - 抖音

张伟丽卫冕金腰带到手多少美媒重磅披露单场129万美金

丰田考斯特12座中巴车 丰田考斯特豪华商务车_搜狐汽车_搜狐网