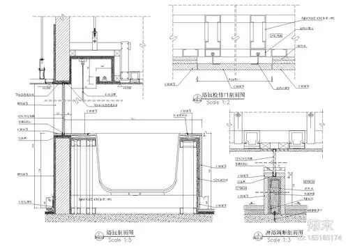
一层门厅平顶剖面,节点大样图

高清图片下载 免费 安全无风险
一层门厅平顶剖面,节点大样图

一层门厅平顶剖面,节点大样图

点击图片查看原图

图片信息

  • 格式: JPG
  • 尺寸: 1254x897
  • 大小: 约1.2MB

版权声明

相关标签

自然风光 高清壁纸 4K画质

分享图片

相关推荐

基于当前图片的相似推荐

室内通用节点详图(卫生间,家具,水景等)-壁柜大样详图

金螳螂室内通用节点大样详图施工图下载【id:165780119】

室内标准天花节点大样详图合集施工图下载

室内设计电梯轿厢旋转楼梯cad节点大样.无论是别墅,复式楼, - 抖音

室内装修节点大样图每天和您一起学习

室内多空间节点大样详图108套施工图下载

室内隔断隔墙节点大样详图施工图下载

干挂铝板工艺资料下载-室内通用节点(干挂,吊杆,铝板,五金等)

吊顶天花节点大样图-室内节点详图-筑龙室内设计论坛

室内标准天花节点大样详图合集施工图下载

室内多空间节点大样详图108套施工图下载

随机推荐

发现更多精彩图片

江苏茅山规模最大的人工4a景点,耗资达28亿,门票150被游客吐槽

玄幻场景第五期-冰火两重天

原创插画|夏日小姐姐|头像系列

幸福归来剧情介绍第28集_电视猫

iphone x全面屏手势操作大全[多图]

胸腰椎椎弓根置钉技术ppt

冒险岛希纳斯打法攻略

(男人身高178标准体重是多少) - 冷求网

中图版地理八年级下册思维导图 中东 第六章第二节 中东

烟台南山学院打造教研产融合平台 开创人才培养新模式