竣工图类型内容与要求

高清图片下载 免费 安全无风险
竣工图类型内容与要求

竣工图类型内容与要求

点击图片查看原图

图片信息

  • 格式: JPG
  • 尺寸: 1080x906
  • 大小: 约1.2MB

版权声明

相关标签

自然风光 高清壁纸 4K画质

分享图片

相关推荐

基于当前图片的相似推荐

四季红某进水闸灭螺工程竣工图

空港工业园区道路管网竣工图-路桥工程图纸-筑龙路桥市政论坛

一套完整的多功能食堂建筑设计竣工图

竣工图的话讲得是什么

某别墅样板房竣工图

某别墅样板房竣工图

建筑竣工图怎么画?有什么要求?附最新装修图纸

竣工验收资料不会编写竣工图不会画一文轻松学会

某城市别墅样板房cad竣工图2

竣工图编制技巧,读完小白变大佬!-工程管理-筑龙项目管理论坛

及施竣工图编制说明要填专项目编号,工程全称,技术专业,施丁单位,施工

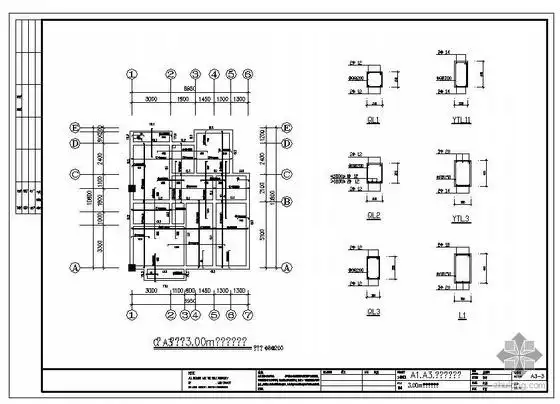
某水电站中控楼结构设计竣工图条形基础

随机推荐

发现更多精彩图片

肖战 你要悄悄地拔尖,然后惊艳所有人 - 抖音

乔欣,《琅琊榜》中饰演萧景睿同父异母的妹妹宇文念,第一部乔欣出场

一克拉钻戒大概多少克?为什么钻石这么贵

"情歌王子"郑源:15岁开演唱会,19岁日挣万元,春晚请他都被拒

黑色婚纱寓意什么? 黑色婚纱代表忠诚的爱,象征着至死不渝的爱 - 抖音

高晓松前妻近照曝光大变网红脸几乎认不出

可爱唯美的摩羯座,高清壁纸图片,生肖星座-回车桌面

8张3到6岁孩子们喜欢的简单迷宫游戏图片免费下载-红豆饭小学生简笔画

太空中的宇航员2048x1536分辨率查看

微笑快乐的八岁小女孩戴着红色派对帽庆祝她的生日,彩色卡通人物矢量

要:赛仓·罗桑华丹(1938—2021)是德尔隆寺第六世赛仓活佛,受过藏传

相遇是缘分,相守靠人心.