(10分)实验室制取乙烯并检验乙烯性质的装置如下图.请回答有关问题

高清图片下载 免费 安全无风险
(10分)实验室制取乙烯并检验乙烯性质的装置如下图.请回答有关问题

(10分)实验室制取乙烯并检验乙烯性质的装置如下图.请回答有关问题

点击图片查看原图

图片信息

  • 格式: JPG
  • 尺寸: 336x187
  • 大小: 约1.2MB

版权声明

相关标签

自然风光 高清壁纸 4K画质

分享图片

相关推荐

基于当前图片的相似推荐

10分如图是一套实验室制取乙烯并验证乙烯具有还原性的实验装置请将

实验室制取乙烯的装置如图所示,试回答

乙烯的实验室制法 怎样检验气密性

《从实验学化学》34:乙烯和乙炔的实验室制法比较.ppt

实验室制取乙烯并检验乙烯性质的装置如下图.

实验室制乙烯的装置图

高中教育 理化生 乙烯的性质和制取ppt 乙烯的工业制取原理的实验

人教版高中选修五《有机化学》第51页实验3-1乙烯的实验室制法及性质

乙烯的实验室制备ppt

随机推荐

发现更多精彩图片

佛光普照佛光普照佛缘2023试试这个壁纸

大帅哥刘耀文氛围感壁纸太爱啦!

ins风橘色背景图67愿你好运

火影结印,火影迷请入.

vogue时尚中国2015年8月-感性色彩时尚女性人像

她家卖衣服也太会打包了8661575157515.

评论 广州正佳广场万豪酒店 (guangzhou marriott hotel tianhe)

有没有那种禁欲系的污污的壁纸呀

丰台分区规划全文发布,推动城市南北均衡发展

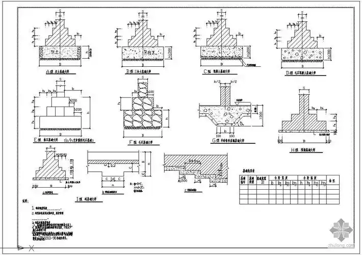
某墙下条形基础节点构造详图

鞋子买好了,教你几招系鞋带方法,让你穿上新鞋潮的上天