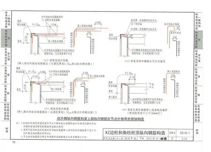
建设施工图集16g10117g10118g901大合集

高清图片下载 免费 安全无风险
建设施工图集16g10117g10118g901大合集

建设施工图集16g10117g10118g901大合集

点击图片查看原图

图片信息

  • 格式: JPG
  • 尺寸: 1364x920
  • 大小: 约1.2MB

版权声明

相关标签

自然风光 高清壁纸 4K画质

分享图片

相关推荐

基于当前图片的相似推荐

22g101最新国标图集电子版已到手快夸我

22g101与16g101的区别,超详细对比_混凝土资讯_混凝土信息网

17g101系列图集常见问题答疑图解,教你轻松学识图 - 知乎

六大变化,22g101系列图集变化简单对比!_节点_构造_钢筋

他来了18g90117g10116g101带着图集来了

建筑平法图集16g101/17g101/18g901系列大合集,工程人都能用! - 知乎

六大变化,22g101系列图集变化简单对比!_节点_构造_钢筋

六大变化,22g101系列图集变化简单对比!_节点_构造_钢筋

他来了,18g901,17g101,16g101带着图集来了,还不速速领回家

1.16g101三维平法图集2.16g101-1cad版3.

他来了,18g901,17g101,16g101带着图集来了,还不速速领回家

他来了,18g901,17g101,16g101带着图集来了,还不速速领回家

随机推荐

发现更多精彩图片

echo爱有回音属于宋亚轩的应援棒

孕30周开始一到晚上大腿内侧软骨痛厉害睡不着宝妈们有没类似情况怎么

折个大白鲨耶.大白鲨white shark 设计:nguye - 抖音

早安最美动态图片大全2021早安问候动态表情包

金字香肠金华腊肠400g,古法配制,标准化生产,做煲仔饭的原料,咸甜味

坚强的5岁小伙经历右肱骨髁上骨折

女海王项斯醒来整容照片被打碎现在被判定为两张富二代选择离婚

钻石彼岸花曼珠沙华十字绣古风男中国风副线2020新款十字绣套件

猫猫情侣头像合集来啦,#发给你想艾特的人 #可爱到爆 #可爱 - 抖音

稍微漏酒,品相也还是蛮好的哇整备完毕,上架封存,镇宅僻邪醉爱#老茅台

小酒鬼们你们的福利来啦解酒药天花板

花几分钟看完这篇你就懂了!