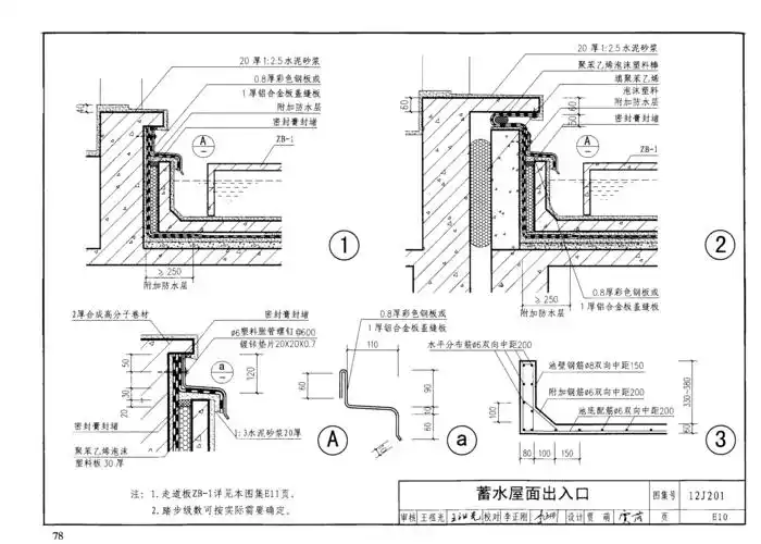
平屋面建筑构造

高清图片下载 免费 安全无风险
平屋面建筑构造

平屋面建筑构造

点击图片查看原图

图片信息

  • 格式: JPG
  • 尺寸: 1799x1235
  • 大小: 约1.2MB

版权声明

相关标签

自然风光 高清壁纸 4K画质

分享图片

相关推荐

基于当前图片的相似推荐

12j201平屋面建筑构造(电控楼女儿墙泛水)

12j201平屋面建筑构造图集之蓄水屋面穿女儿墙水落口

土木工程专业精华汇总 女儿墙长度 更新时间:2018-09-21 07:47:29审

涂膜防水屋面檐沟_平屋面做法图集12j201a12_12j201图集a12_建筑图集

女儿墙泛水节点构造详图专题_2019年女儿墙泛水节点构造详图资料免费

请购买正版图书本页是12j201变形缝图集蓄水屋面檐沟及低女儿墙泛水

12j201平屋面建筑构造(电控楼雨水管)

女儿墙泛水节点构造详图专题_2019年女儿墙泛水节点构造详图资料免费

12j201平屋面建筑构造f4_停车屋面女儿墙泛水_平屋面做法图集12j201f4

随机推荐

发现更多精彩图片

抖音上很火微信头像 微信头像图片大全 -【爱个性】

《火影忍者》中最不适合做老婆的美女有哪些?_腾讯新闻

地板分享369拼法损耗大

8月最新龙虾简笔画 龙虾简笔画图片

宠物用品一件代发/正品保证 全国可发.

我阅读,我快乐,我成长——昆吾小学四2班读书交流成果汇报展台(一)