原创一张图看懂二战时期德国党卫军和国防军区别请仔细看那敬礼姿势

高清图片下载 免费 安全无风险
原创一张图看懂二战时期德国党卫军和国防军区别请仔细看那敬礼姿势

原创一张图看懂二战时期德国党卫军和国防军区别请仔细看那敬礼姿势

点击图片查看原图

图片信息

  • 格式: JPG
  • 尺寸: 541x527
  • 大小: 约1.2MB

版权声明

相关标签

自然风光 高清壁纸 4K画质

分享图片

相关推荐

基于当前图片的相似推荐

德国纳粹军官,长得帅就容易被原谅吗?

英媒纳粹党卫军司令女儿去世冷战加入西德情报机构

二战德国国防军联手美军对战纳粹党卫军,这是什么剧情?

德国纳粹军官,长得帅就容易被原谅吗?

二战德国国防军联手美军对战纳粹党卫军,这是什么剧情?

二战德国国防军联手美军对战纳粹党卫军,这是什么剧情?

二战德国国防军联手美军对战纳粹党卫军,这是什么剧情?

被人遗忘的纳粹冲锋队,人数250万,差点干翻党卫军

二战德国国防军联手美军对战纳粹党卫军,这是什么剧情?

二战德国国防军联手美军对战纳粹党卫军,这是什么剧情?

朝鲜战争,最荒唐的一幕,希特勒的"纳粹党卫军"袭击了朝鲜_游击队_美军

台当局防务部门刊登穿纳粹德国党卫军(ss)制服的照片,引发以色列抗议.

随机推荐

发现更多精彩图片

冯绍峰电视剧冯绍峰最受好评的十部影视作品

陆贞传奇演员表图片

3d蓝天白云上微笑太阳插画

我印象最深刻的故事是程门立雪,杨时和游酢尊师重道的精神值得我

中国两个字用毛笔写总样最好

房子新,最低可到1800一个月,照片实图拍摄,可以随时看房随时入住#公寓

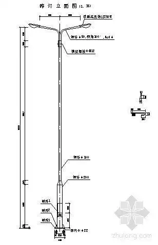
分享双臂路灯立面图资料下载

跳跃的海豚-动物世界系列壁纸

今天设计的这几个厨师还不赖吧,身着厨师服.英俊潇洒,气宇轩昂 - 抖音

根管治疗后牙齿已经不疼了为什么还要戴牙冠呢