平开门确定开向的方法,我猜你需要

高清图片下载 免费 安全无风险
平开门确定开向的方法,我猜你需要

平开门确定开向的方法,我猜你需要

点击图片查看原图

图片信息

  • 格式: JPG
  • 尺寸: 640x532
  • 大小: 约1.2MB

版权声明

相关标签

自然风光 高清壁纸 4K画质

分享图片

相关推荐

基于当前图片的相似推荐

钢制平开门介绍不锈钢平开门价格钢制平开门厂家

如何在自由绘窗中设计平开门

外开平开门在立面图中的开启方向符号是什么?

关于平开门的开启方向和开启口

如何在自由绘窗中设计平开门

什么叫平开门,你真的懂吗?

极窄平开门来啦有没有你喜欢的

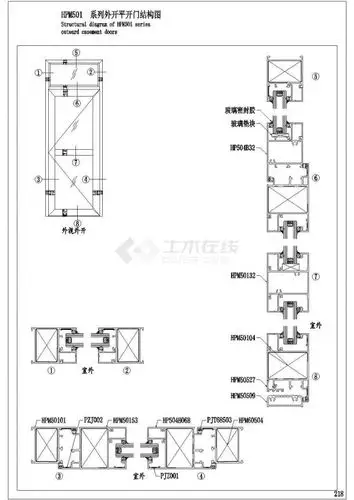
平开门装配图及截面图,本工程资料为dwg格式,图纸包括:各版块详细示意

茂名宝马金平开门生产商-宝马灰平开门-平开门铝材

【木门玻璃门】金孔雀家居缅甸柚木实木门卫生间门平开门移门玻璃门

断桥铝平开门 平开式防盗门 别墅大门防盗门 平开庭院护院大门 德耀发

随机推荐

发现更多精彩图片

2021抖音发财暴富情侣头像

从小酒馆唱到维密舞台张靓颖向我们诠释梦想的力量究竟有多强大

狮子座星座的图标,蓝色的霓虹灯全息图在星空的黑暗背景,星座.

赤井秀一击碎组织的绯色子弹

头条问答 - 四川盆地和云贵高原哪里的降水量多一点?你怎么看?

5d橙色uc浏览器logo图标

晚安动态可爱表情晚安动态表情包

400_224gif 动态图 动图