枕头没垫好会只侧头 不侧身,大部分时间都是仰睡,感觉宝宝额头有点窄

高清图片下载 免费 安全无风险
枕头没垫好会只侧头 不侧身,大部分时间都是仰睡,感觉宝宝额头有点窄

枕头没垫好会只侧头 不侧身,大部分时间都是仰睡,感觉宝宝额头有点窄

点击图片查看原图

图片信息

  • 格式: JPG
  • 尺寸: 1080x1440
  • 大小: 约1.2MB

版权声明

相关标签

自然风光 高清壁纸 4K画质

分享图片

相关推荐

基于当前图片的相似推荐

二孩孕妈正散步 5分钟后

宝宝囟门出现这种情况,赶紧带宝宝去医院!

宝宝头形异常?不是睡偏头那么简单,有种病需及时排除

东方人,婴儿,儿童,脸,头,脸颊,一个人,躺,横图,俯视,室内,特写,白天

致病婴儿抑菌霜:暗含激素的益芙灵

怎么看宝宝头大不大是不是佝偻病的方颅

舟状头宝妈们的疑问

认识的人都说前三个月不能睡枕头,因为宝宝刚出生的时候额头有点窄,怕

好吧,因为我所生活的地区,老人都喜欢扁平,但是我婴儿时期据说鼻子不

两个月婴儿额头白斑图片

宝宝出生时没注意看,在月里的时候就发现宝宝眼睛以及额头出现一点一

随机推荐

发现更多精彩图片

陪女朋友到ktv庆祝生日,没想到一个美女闯了进来抱着我不肯松手

板凳拍照坐姿真的不好坐哈哈

张新成帅哥,高清图片,手机壁纸

遇见美好##牛欣欣我比流言蜚语更早认识你##牛欣欣我们永远爱你

你是我最愚蠢的一次浪漫吉他谱

路虎发现5沿袭了这一传统,其外观线条硬朗有力,给人留下深刻印象.

光遇表情包第六十一弹

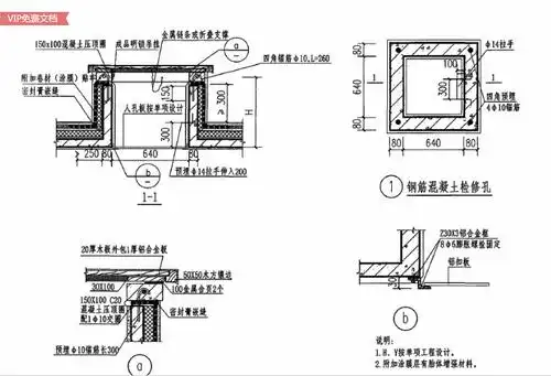
屋面检修孔15zj201117怎么套清单定额

汽车标志高达摩托车反光公国拉花贴纸

小陈小陈 吃饭用盆037. 小杨小杨 喜气洋