你们是用什么姿势抱着女朋友睡觉的呢?

高清图片下载 免费 安全无风险
你们是用什么姿势抱着女朋友睡觉的呢?

你们是用什么姿势抱着女朋友睡觉的呢?

点击图片查看原图

图片信息

  • 格式: JPG
  • 尺寸: 580x580
  • 大小: 约1.2MB

版权声明

相关标签

自然风光 高清壁纸 4K画质

分享图片

相关推荐

基于当前图片的相似推荐

用什么睡姿抱女友睡觉最舒服?

什么睡姿抱女友睡觉最舒服

真的好喜欢每天睡觉之前跟对象抱着聊天啊

女朋友跟男朋友睡觉他会不会每天晚上抱着你睡?

男人睡觉后面抱着你这种举动代表着什么 男人抱着你的心理是什么

排肾毒,还可预防胆结石,肾结石等疾病; 4,睡觉前一杯水降低心脏病危险

如何抱着女友睡最舒服 情侣睡姿盘点

女性向被人抱着睡是种什么体验呼吸心跳

男人喜欢搂着女人睡觉,逃不过这三种心理

常见的几种抱人方式

用什么睡姿抱女友睡觉最舒服?

夫妻睡姿揭示双方感情好坏,你属于哪种?

随机推荐

发现更多精彩图片

超好看的黑白头像女生高清图片

睡衣春秋纯棉纱布长袖薄款日甜美可爱卡通家居服睡衣

北京资讯搜索-房天下(第1页)

型男硬汉梳个飞机头发型,雄性荷尔蒙满屏,沉稳而不会显得老气,阳刚

女休闲装-女装设计-服装设计

绘画教程 #绘画 #二次元原创 #武器绘画 #王者 #张飞 - 抖音

6测试服 新皮肤原画打野装备调整_英雄联盟

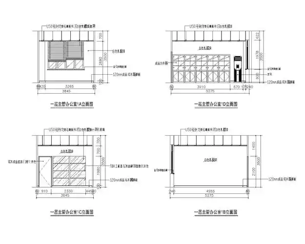
5一层主管办公室立面图

达利园注心蛋黄派糕点500g

中国 福建省 福州市 马尾区 马尾镇马尾镇卫星地图 本站收录有:2021

狮子与皇冠等复古花纹图案矢量素材