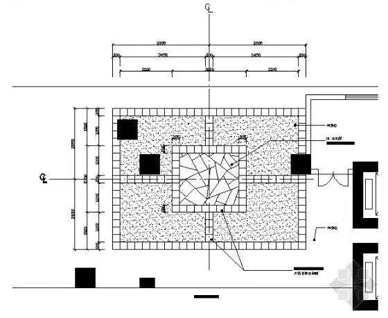
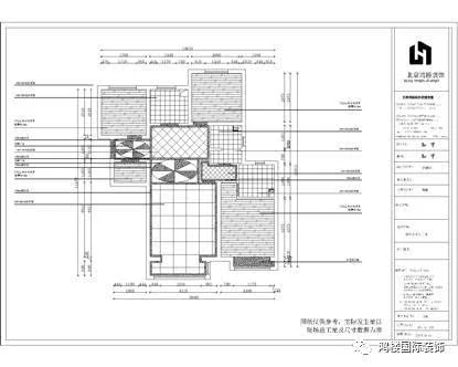
[分享]铺装cad素材资料下载

高清图片下载 免费 安全无风险
[分享]铺装cad素材资料下载

[分享]铺装cad素材资料下载

点击图片查看原图

图片信息

  • 格式: JPG
  • 尺寸: 760x436
  • 大小: 约1.2MB

版权声明

相关标签

自然风光 高清壁纸 4K画质

分享图片

相关推荐

基于当前图片的相似推荐

[郑州]四层别墅地面铺装设计图

园路石材铺装cad样式参考

分享景观入户铺装cad资料下载

分享 | 150款过道走廊石材拼花cad图

[分享]道路铺装平面大样图cad资料下载

分享园林广场铺装cad平面图资料下载

园路石材铺装cad样式参考

园路石材铺装cad样式参考

石材cad资料大全千金难买吐血公开

[分享]园路铺装cad详图资料下载

随机推荐

发现更多精彩图片

动漫头像和壁纸# 冷艳气质戴眼镜系列女生头像 676767#九月

超好看的治愈系头像图片100张_微信头像_头像屋

"展昭"何家劲64岁被曝娶年轻妻子已生女,曾有刻骨铭心的旧爱

海量高清情侣唯美精选锁屏壁纸图片大全(二)

忍气吞声可能憋出癌10条防癌建议每做一条就离癌更远一步

徐帆:与初恋王志文同居3年,嫁给了二婚的冯小刚

华为荣耀20青春版(华为手机荣耀20青春版)

这家吊炉串不愧为长春四大扛把子烧烤之一

肇兴侗寨摄于贵州黔东南黎平县

小班安全上下楼梯的安全ppt课件教案