2023胡润u30中国创业先锋榜发布 189位青年才俊中长沙有一位_新浪财经

高清图片下载 免费 安全无风险
2023胡润u30中国创业先锋榜发布 189位青年才俊中长沙有一位_新浪财经

2023胡润u30中国创业先锋榜发布 189位青年才俊中长沙有一位_新浪财经

点击图片查看原图

图片信息

  • 格式: JPG
  • 尺寸: 800x828
  • 大小: 约1.2MB

版权声明

相关标签

自然风光 高清壁纸 4K画质

分享图片

相关推荐

基于当前图片的相似推荐

一年级数学下册认识人民币精编讲练细致全面再不出错

一年级数学下册认识人民币精编讲练细致全面再不出错

购物小达人实践出真知南宁市凤翔路小学一年级7班开展认识人民币教学

泉州一小学:复印人民币 为当学具

2022年度一年级下册数学(全册)单元测试卷及答案_在里_人民币_个数

一年级数学一年级下认识人民币

当前约 50 元人民币),可以选择一台惠普 envy 家用打印机;每月支付 8

2024年平度市南京路小学校服采购项目竞争性磋商采购公告

2023胡润u30中国创业先锋榜发布 189位青年才俊中长沙有一位_新浪财经

20%|人民币_新浪财经_新浪网

2023胡润u30中国创业先锋榜发布 189位青年才俊中长沙有一位_新浪财经

随机推荐

发现更多精彩图片

卡通人物蜡笔小新的简笔画画法

女睡觉唯美头像女生趴着睡觉头像正在睡觉的女孩图片

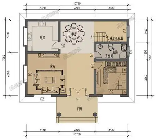
11x8米二层乡村小别墅普普通通实在实用

扬州驰韵古琴 仲尼式桐木民族乐器专业演奏琴

21张来自暗网的超恐怖照片 光看第一张就让人受不了了!

赵丽颖和谭松韵在"金鹰奖"太亮眼,瞬间对"娃娃脸"肃然起敬

四年级下册数学简便计算易错100题

彩铅画 虾.彩铅画步骤图#彩铅 #图文伙伴计划 #画画 #儿 - 抖音