老北京的记忆:圆明园平湖秋月遗址 - 美篇

高清图片下载 免费 安全无风险
老北京的记忆:圆明园平湖秋月遗址 - 美篇

老北京的记忆:圆明园平湖秋月遗址 - 美篇

点击图片查看原图

图片信息

  • 格式: JPG
  • 尺寸: 1077x1917
  • 大小: 约1.2MB

版权声明

相关标签

自然风光 高清壁纸 4K画质

分享图片

相关推荐

基于当前图片的相似推荐

关于西湖的资料及图片

#西湖十景之平湖秋月.南宋时,被列为西湖十景之三,元代又称之 - 抖音

2018平湖秋月_旅游攻略_门票_地址_游记点评,杭州旅游景点推荐 - 去哪

关于西湖的资料及图片

西湖十景之平湖秋月

【平湖秋月景点介绍】 平湖秋月是杭州西湖的著名景观之一,位于白堤的

西湖十景介绍.pptx_word文档在线阅读与下载_免费文档

西湖名胜古迹:平湖秋月

平湖秋月的意思是什么-解历史

杭州西湖一日游十景攻略.路线:断桥残雪-白堤-平湖秋月-西泠 - 抖音

随机推荐

发现更多精彩图片

声母韵母的拼读表 拼音是语文的基础里的基础

助力文明交通小彩虹在行动第二波志愿者招募开始啦

东山的石窟全是唐代的窟龛,缺乏一定的观赏性.

当六一遇上城市提升巴渝巾帼行动

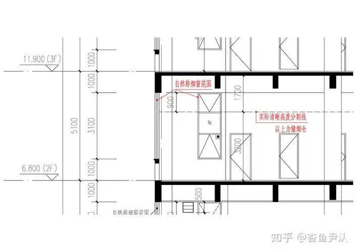
建筑施工图入门学习# 60-门窗大样图(1:50图纸) - 知乎

嘉善唯一缪家村获评浙江省气候康养乡村

社会太复杂人心太险恶的句子 社会复杂人心险恶经典

伊酷达海钓鼓轮曜系列ebg50金属鼓轮/强雷轮/近海船钓轮横向鱼轮

戳穿了45岁张蕾的"真实处境",怪不得她会离开央视|李思思|董卿|杨帆

林肯飞行家50万级大六座:一款豪华suv的魅力之旅

现在农村建房别墅设计中,坡屋顶是一种非常流行的屋顶设计方式.