05zj311图集免费下载-中南标05zj311地下室防水图集下载pdf高清版

高清图片下载 免费 安全无风险
05zj311图集免费下载-中南标05zj311地下室防水图集下载pdf高清版

05zj311图集免费下载-中南标05zj311地下室防水图集下载pdf高清版

点击图片查看原图

图片信息

  • 格式: JPG
  • 尺寸: 492x360
  • 大小: 约1.2MB

版权声明

相关标签

自然风光 高清壁纸 4K画质

分享图片

相关推荐

基于当前图片的相似推荐

11zj311地下室防水图集超清版pdf格式免费版

s143圆形立式阀门井及阀门套筒

中南标图集11zj411阳台外廊栏杆绿色破解版

加固图集11g311第193页关于框柱向下锚固怎么做法?

老师们11zj901 41页的爬梯怎么算呀-服务新干线答疑解惑

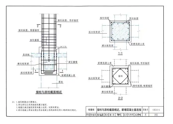
13g311-1:混凝土结构加固构造

11zj111变形缝建筑构造图集pdf格式清晰电子版【中南标11zj111图集】

中南标11zj411阳台外廊栏杆图集

05zj401(楼梯栏杆)图集

第十一期中南标准建筑图集411zj401411501901

请问11zj90127图集是什么在哪里可以查到

随机推荐

发现更多精彩图片

短发这样扎半扎发好温柔,简单易学好看

从150斤到140斤的第三天

如何评价《东北一家人》的剧情?

【张柏芝代言】vvc玻尿酸冰袖(热品库)

宝妈帮忙看看不懂今天早上四点多见红是不是不是快生了

一组清新简约中国风水果插画

美国无架豆角种子 老品种豆角 特长豆角地豆 春季夏季秋季 蔬菜种

奔驰amg-glc43轿跑suv_奔驰glc amg车友圈_懂车帝

李小龙珍贵中文信件将展出!

微信动漫头像微丧 动漫头像图片大全 -【爱个性】