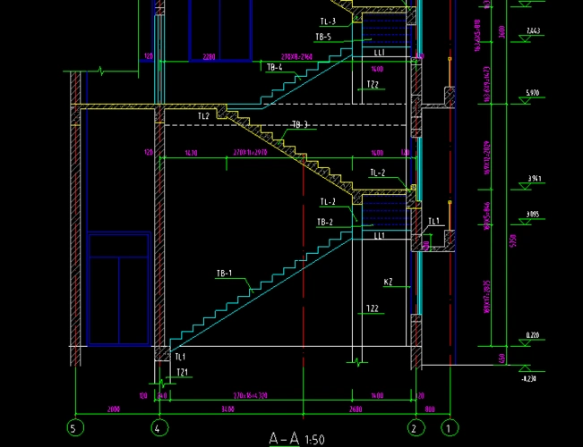
剖面图楼梯平台无法放置标高

高清图片下载 免费 安全无风险
剖面图楼梯平台无法放置标高

剖面图楼梯平台无法放置标高

点击图片查看原图

图片信息

  • 格式: JPG
  • 尺寸: 572x504
  • 大小: 约1.2MB

版权声明

相关标签

自然风光 高清壁纸 4K画质

分享图片

相关推荐

基于当前图片的相似推荐

根据剖面图所示,室外地坪标高为 .

3,尺寸注法在剖面图中,应注出垂直方向上的分段尺寸和标高.

认真阅读剖面图我们能够在标准图集中查询到该楼梯窗护栏的构造做法的

某建筑物剖面图如下:问题 1.楼梯的形式主要有哪些? 2.

1,剖面图中管道及水位标高标注法

楼梯剖面图的板标高与板施工图中的板结构标高差2mm应该取哪个

市政污水管网建模标高问题

管道纵断面图上未标注原地面标高直接识别出来的土方量会有什么问题吗

楼梯剖面图该从哪里看是从aa下看还是aa上面看还有没剖切到的那面的tz

好我算新建道路的土方是从断面图的原地面高层直接算路床底标高对吗

二,建筑剖面图的表示方法

楼梯详图里面ptb剖面图标高和平面图标高不一致圈白线处

随机推荐

发现更多精彩图片

女生单人各种拍照姿势合集~码住!拍 拍 拍起来吧

农机影集:美国约翰迪尔5e系列,多用途拖拉机100马力车型_懂车帝

视频多图东莞舞林大会决出各奖项多国参赛选手国际范儿十足

乌苏啤酒 wusu红乌苏啤酒500mlx24罐装易拉罐装 听装啤酒 新疆大乌苏

研究生论文摘要模板

201920赛季意甲各队夏季转会投入支出及球员转会费排行汇总

3265地铁笨蛋4_3265地铁笨蛋4游戏在线玩_3265地铁笨蛋4小游戏无敌版

动漫中被后宫包围的人生赢家,上辈子救过地球?网友:我吃柠檬!