钢结构节点设计ppt

高清图片下载 免费 安全无风险
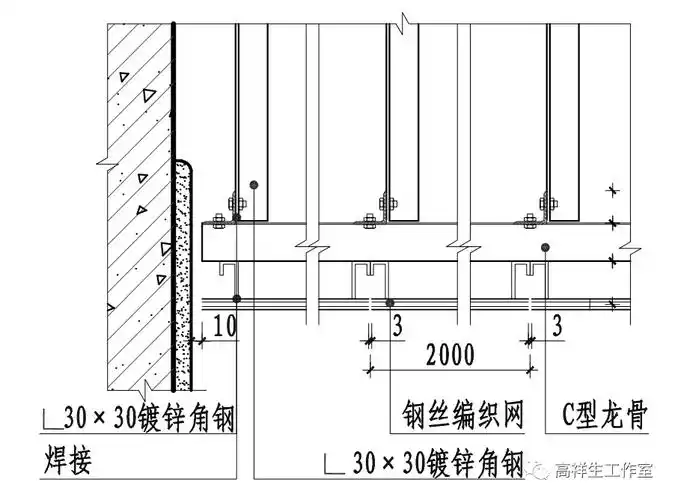
钢结构节点设计ppt

钢结构节点设计ppt

点击图片查看原图

图片信息

  • 格式: JPG
  • 尺寸: 1170x810
  • 大小: 约1.2MB

版权声明

相关标签

自然风光 高清壁纸 4K画质

分享图片

相关推荐

基于当前图片的相似推荐

室内装修节点大样图每天和您一起学习

多种实木楼梯踏步工艺节点分享,美观实用.#室内设计 #装修 - 抖音

吊顶:豪华装饰板 【岗亭内配置】: 标准配置:灯,开关插座,暗敷线路

这才是地暖铺贴的正确做法dop节点大放送

13-3-28 暗龙骨金属网顶棚构造节点图(二)

室内装饰工程通用节点-墙面节点详图

房地产开发关键节点(龙湖及万科)

某楼梯间楼层cad设计详图_室内节点图块_土木在线

房屋建筑学十节点图.pdf

13-3-31 明龙骨金属网顶棚构造节点图(一)

节点详图(节点详图是什么意思)_大全-幸福起航

随机推荐

发现更多精彩图片

盘点那些演"日本鬼子"入木三分的演员,其实他们都是中国人

手账必备超可爱的80个卡通人物头像

化身孤岛的鲸吉他谱(图片谱,弹唱)_周深(卡布叻 / 卡布)_化身孤岛的鲸

温碧泉八杯水新活保湿水130ml(补水保湿 护肤爽肤水化妆品男女)

图片628,吉林省旅游景点,风景名胜 - 蚂蜂窝图库

09小男生的小汽车编织包包附图解

机箱电源线d口一分三 大4pin一分三延长线 ide扩展线转接线

奥迪a8 2021款 a8l 50 tfsi quattro 舒适型

且行珍惜-镇魂手书文案设计

eps线条外墙装饰泡沫窗套别墅室外造型檐线腰线欧式浮雕梁托弧形

一:选购格兰昆奇威士忌威士忌洋酒建议