少林武僧|武术速写-10动作

高清图片下载 免费 安全无风险
少林武僧|武术速写-10动作

少林武僧|武术速写-10动作

点击图片查看原图

图片信息

  • 格式: JPG
  • 尺寸: 1280x1707
  • 大小: 约1.2MB

版权声明

相关标签

自然风光 高清壁纸 4K画质

分享图片

相关推荐

基于当前图片的相似推荐

插画-正版商用图片190byu-摄图新视界

大班简笔画中国武术

一组蓝色线稿武术人物套图动作三免抠元素

中国武术系列规定套路螳螂拳

uozi手绘黑白线稿中国功夫插画元素

少林功夫简笔画功夫招式简笔画张达简笔画练武功的人怎么简笔画武当

二,手挥琵琶|中国武术段位制-中段位技术教程-四

简约线条人物抽象框中框装饰画线条人物肖像装饰画矢量素材立即下载

新品上市丨是时候奉上茶江湖失传已久的武林秘笈了

德多哥图片-德多哥素材-德多哥插画-摄图新视界

随机推荐

发现更多精彩图片

贾玲新片马上开机,已拍摄部分,路演商务穿搭风,老公姐气质显著_张小斐

孔雪儿210311舞台造型,黑色亮片裙搭配精致妆容,一上舞台就光芒四射

古风动漫头像女生我要个性网

vivo新机官宣:6月7日,正式开售

五岁宝宝嗓子老是嘶哑发炎怎么回事,请问一有何方法,下有配图谢谢!

游览 北京市 西城区 西什库教堂 北京四大教堂之北堂

亮化绿化美化封开县城更添韵味

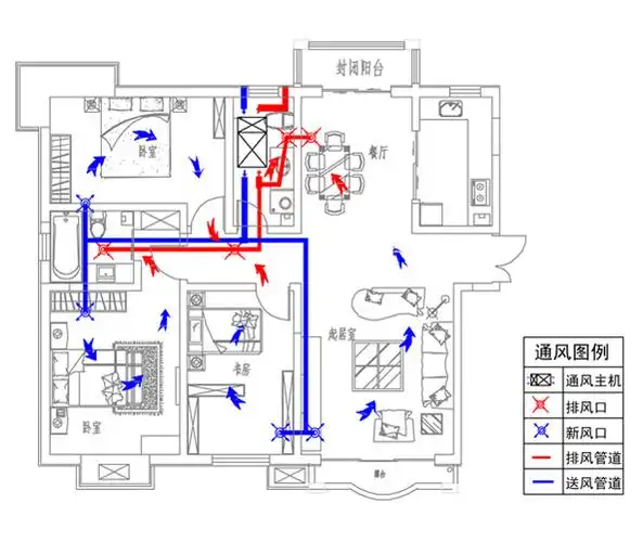
普通住宅新风系统解决方案

广西玉林园博园,我来了! - 美篇