标高符号怎么看?

高清图片下载 免费 安全无风险
标高符号怎么看?

标高符号怎么看?

点击图片查看原图

图片信息

  • 格式: JPG
  • 尺寸: 498x277
  • 大小: 约1.2MB

版权声明

相关标签

自然风光 高清壁纸 4K画质

分享图片

相关推荐

基于当前图片的相似推荐

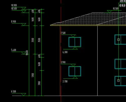
建筑物各个方向的立面图室外标高不同识读建筑立面图时,所需注意点

在总平面图,平面图,立面图,剖面图上,常用标高符号表示某一部位的高度

[提问]园林景观施工图中有哪些标高符号

第二张墙体图,第三张建筑立面图,我这个首层底标高怎么设置啊

建筑物各个方向的立面图室外标高不同

标高符号 建 筑 制 国 家 标 准 简 介 何培英

建筑制图(cad)标高符号是怎么画的?

建筑物各个方向的立面图室外标高不同

主要是因为立面图的左右两边标高,我很迷惑

随机推荐

发现更多精彩图片

素描画,江南铅笔画的素描山水画请问各位见得多吗?

不规则的雾光粉色挑染,也是显白又活泼了扎起来或者是披着头发,不管是

立体椭圆形滑动开关按钮png图片免抠矢量素材

一组清净澄明的水墨画【子非鱼】

焊个楼梯不知道踏步真么弄

《王者荣耀》铠绛天战甲皮肤介绍

大量高价收购牵牛花种子,黑丑真的很丑吗 - 抖音

木制品摆件木制工艺品玩具模型小摆件手工民族风创意生日礼物女生礼品

清新的夏凉帽,亲手做更有成就感.附教程哦

肚子疼不一定是胃痛九宫格快速定位法