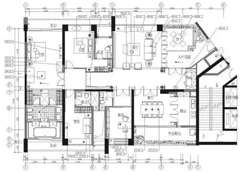
【已回复】小户型方案,求大佬优化_平面研讨_室内设计联盟 - powered

高清图片下载 免费 安全无风险
【已回复】小户型方案,求大佬优化_平面研讨_室内设计联盟 - powered

【已回复】小户型方案,求大佬优化_平面研讨_室内设计联盟 - powered

点击图片查看原图

图片信息

  • 格式: JPG
  • 尺寸: 4733x3350
  • 大小: 约1.2MB

版权声明

相关标签

自然风光 高清壁纸 4K画质

分享图片

相关推荐

基于当前图片的相似推荐

经典90平方米别墅室内装修设计图纸

2020最新房屋室内格局橱柜设计图纸

家居装修cad平面图纸|空间|室内设计|果冻豆逗斗 - 原创作品 - 站酷

花漾美作|有你有我,安之静好_家居别墅_室内设计联盟 - powered by

高层90户型施工图_施工图纸_室内设计联盟 - powered by discuz!

室内设计初学者,求可以练习的草图.

三视图加工图纸室内设计cad施工素材新中式古典家具弧形沙发椅子 标准

2015中小户型室内设计平面图纸

新人报到,求各位大神帮忙优化图纸_平面研讨_室内设计联盟 - powered

【已回复】婚房设计_平面研讨_室内设计联盟 - powered by discuz!

[深圳]邱春瑞_中信红树湾二期r7样板房图纸-住宅装修-筑龙室内设计

空间划分:三居室 结构类型:平层 图纸深度:施工图 设计风格:现代风格

随机推荐

发现更多精彩图片

蔡徐坤0802生日快乐 坤kun24岁生日快乐[耶r][生日蛋糕r][庆祝r]

电影《怒海救援》杀青 不惧风浪扬帆起航

听董卿朗诵经典诗歌青春句句沁人心脾

高清帅气侧脸男生头像真人图片

com 腕表之家论坛|手表名表_手表品牌大全_世界名表-专业腕表手表论坛

来推点同人文学鬼灭之刃 炭善 超温柔长男和绝.