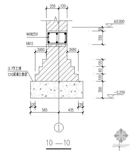
砖砌大放脚条基结构详图cad

高清图片下载 免费 安全无风险
砖砌大放脚条基结构详图cad

砖砌大放脚条基结构详图cad

点击图片查看原图

图片信息

  • 格式: JPG
  • 尺寸: 760x564
  • 大小: 约1.2MB

版权声明

相关标签

自然风光 高清壁纸 4K画质

分享图片

相关推荐

基于当前图片的相似推荐

农村砖混结构大放脚,要抹灰么?

砖基础大放脚砖基础大放脚尺寸

砖基础大放脚详细精制实操

大放脚基础厚度计算?

某砖砌大放脚条形基础1000节点构造详图

砖基础大放脚砖基础大放脚尺寸

[分享]基础大放脚dwg资料下载

大放脚与钢筋混泥土拓展基础哪个结实

这个词大伙儿也许较为生疏,基础大放脚主要是为了更好地达到砖垒墙下

建筑等高式大放脚,如何得出砖的数量?付图,最好要有计算步骤!

随机推荐

发现更多精彩图片

无偿献血暖人心,尽责育人展担当

94民间言:北有冬虫草,南有金线莲.

三千鸦杀:蒋依依一舞惊鸿,这个出场太美了

"延月梳风——丘挺作品展"于苏州博物馆现代艺术厅启幕

2023新款icon艾肯usolo外置声卡电脑游戏主播唱歌录音k歌直播专用

p>《勇者警察》是日本动画制作公司 a target="_blank" href="/item

2024最新动作猛片,盲侠捉刀人血战恶霸,场面打斗精彩|座头市_网易视频

奥特曼传奇英雄破解版内购免费下载安装

茶桌怎么摆放风水最好(茶几摆放有讲究)

30米高空跳窗50米射击刀刃这些特警真帅