高清晰梅赛德斯奔驰amg跑车壁纸

高清图片下载 免费 安全无风险
高清晰梅赛德斯奔驰amg跑车壁纸

高清晰梅赛德斯奔驰amg跑车壁纸

点击图片查看原图

图片信息

  • 格式: JPG
  • 尺寸: 1400x788
  • 大小: 约1.2MB

版权声明

相关标签

自然风光 高清壁纸 4K画质

分享图片

相关推荐

基于当前图片的相似推荐

奔驰amg(静态壁纸) - 静态壁纸下载 - 元气壁纸

车是移动的家北京奔驰4s店g63amg新款上市

mercedes-amg gt3超清壁纸大片儿

荷尔蒙的制造者奔驰amggt

奔驰cls63amg桌面壁纸奔驰cls63win7壁纸宽屏壁纸奔驰amg汽车图片

奔驰s63 amg壁纸2560x1440分辨率下载,奔驰s63 amg壁纸,高清图片,壁纸

mercedes-amg gt4超清原图壁纸大片儿

梅赛德斯的cg 梅赛德斯的车主的意思

2017奔驰amg gt跑车4ksimilar c汽车壁纸壁纸,高清图片,壁纸-桌面城市

mercedes-amg gt3超清壁纸大片儿

2015年奔驰amg gt3 2相关车壁纸壁纸,高清图片,壁纸,其他-桌面城市

随机推荐

发现更多精彩图片

漫画,黑白 - 堆糖,美图壁纸兴趣社区

高端刺绣衬衫女夏2024新款宽松大码中年妈妈遮肚子休闲五分袖上衣

数字经济增速连续6年全国第一,贵州发展大数据优势何在?_国内新闻_大

最受欢迎的6位华语女歌手,如果只能喜欢两个,你会选谁?

大家的脑海中都是白衬衫和黑色西裤,自然而然说起这种搭配,很多人自动

黑脸表情包复制黑脸笑表情包2022已更新今日图集

古今园收藏级别品相罐装香烟.古今园,亦称"古今牡丹园",位于 - 抖音

彩虹色的蘑菇单体练习马克笔手绘课程

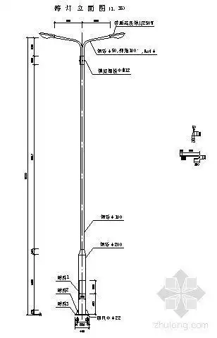
分享双臂路灯立面图资料下载

中国运载能力最大火箭长征五号下月将首飞