62×51mm nato /b>步枪子弹又称"7.62 nato",铜质被覆,铅芯.

高清图片下载 免费 安全无风险
62×51mm nato /b>步枪子弹又称"7.62 nato",铜质被覆,铅芯.

62×51mm nato /b>步枪子弹又称"7.62 nato",铜质被覆,铅芯.

点击图片查看原图

图片信息

  • 格式: JPG
  • 尺寸: 375x333
  • 大小: 约1.2MB

版权声明

相关标签

自然风光 高清壁纸 4K画质

分享图片

相关推荐

基于当前图片的相似推荐

车工永远不寂寞几张子弹图纸抽空车一个试试

模具工永远不寂寞,几张子弹图纸,抽空车一个试试!

大学实习用数控机床加工"子弹"感觉自己很牛叉~_进行_文章_补充

《逃离塔科夫》中的5种7.62x39mm步枪弹你认得全吗?_枪械

实际上对人的伤害程度是:9mm>7.62mm>5.56mm2,三种子弹谁伤害高?

在玩"吃鸡"游戏中,小编最喜欢捡的就是5.56mm及7.62mm的子弹了.

国产56式7.62毫米普通钢芯弹

美军特种部队的四种7.62mm子弹

五种m43穿甲弹.各种m43型7.62×39mm子弹.sp-3和sp-4微声子弹.

10.苏联托卡列夫tt-33手枪,使用7.62毫米手枪弹,弹匣备弹8发.

世界上13款最成功的机枪,老货m2hb仍在西方大量服役_我国_弹药_年代

小小子弹大有学问,带你认识子弹里的秘密

随机推荐

发现更多精彩图片

浙江省温州市纹身师罗建丰的纹身作品集

最新qq群头像霸气王范带字大全

纹身女孩,金发女郎,手 640x960 iphone 4/4s 壁纸,图片,背景,照片

动车组(或称crh3-380型),是中国铁路总公司为营运新建的高速城际铁路

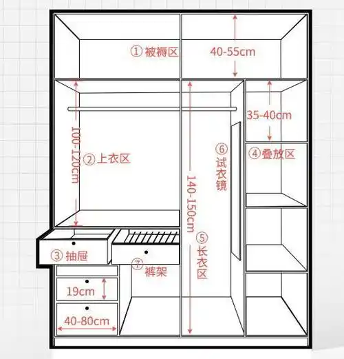
卧室衣柜都是一样的?错!别人内部这样设计比你多装一倍!

太空泥少儿手工茄子粘土教程来啦,可爱的茄子和爸爸妈妈一起玩,简单有

金鲳鱼肉质细嫩,味道鲜美,用蒸即简单又美味蛋白质

35款中国唐装/旗袍裁剪图!(附:旗袍一字扣)

柴犬冬季打工人表情包|要迟到了

太湖湾新裤子赵梦来了