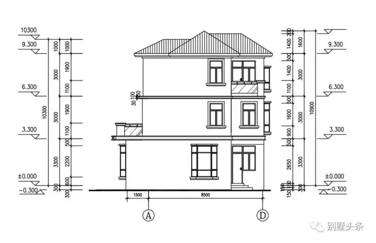
砖混结构户型为单家独院式别墅设计

高清图片下载 免费 安全无风险
砖混结构户型为单家独院式别墅设计

砖混结构户型为单家独院式别墅设计

点击图片查看原图

图片信息

  • 格式: JPG
  • 尺寸: 939x792
  • 大小: 约1.2MB

版权声明

相关标签

自然风光 高清壁纸 4K画质

分享图片

相关推荐

基于当前图片的相似推荐

现代风格独栋别墅建筑施工图(cad)

[广东]3层独栋别墅施工图设计

框架结构三层独栋别墅全套施工图 立面图3

[广东]3层独栋别墅施工图设计

二层独栋别墅建筑施工图 1-10立面图

精致360度无死角好看的现代风别墅设计

现代别墅外立面67世界变化不停

三层独栋别墅建筑施工图设计

现代化别墅外观外立面设计

欧式三层农村自建房户型,室内布局非常贴切现代都市生活

【别墅图纸】第二十一期分享1套经典别墅图纸

现代风别墅私宅61轻薄立面61极简设计

随机推荐

发现更多精彩图片

闫妮照片头像大全成熟有韵味的闫妮图片头像

应采儿晒亲亲照庆祝结婚13周年 并配文:为什么都是我主动_陈小春_婚礼

最丑女人?看过她的人生你绝不会这么想

古称玄龄①善谋,如晦②善断.盖谋与断当兼备而不可一缺者.

中粮置地广场-"中粮置地广场位于安定门外大街,临近地坛公.

这牌还在纠结是大四喜还是字一色呢,没想到对手直接就给拿下啦!

铝合金门窗的构成有哪些

spacex 测试发射塔"筷子",星舰第五次试飞将用塔臂接住助推器