钢琴 | 千寻的华尔兹

高清图片下载 免费 安全无风险
钢琴 | 千寻的华尔兹

钢琴 | 千寻的华尔兹

点击图片查看原图

图片信息

  • 格式: JPG
  • 尺寸: 1376x860
  • 大小: 约1.2MB

版权声明

相关标签

自然风光 高清壁纸 4K画质

分享图片

相关推荐

基于当前图片的相似推荐

久石让简单易学钢琴谱千寻的华尔兹带指法c大调钢琴谱独奏谱

千寻的华尔兹千寻のワルツ千与千寻ost双手简谱预览1

千寻的华尔兹钢琴谱_久石让宫崎骏_千寻のワルツ_千与千寻ost

千与千寻插曲千寻のワルツ千寻的华尔兹钢琴独奏版

钢琴谱:千寻的华尔兹 (重新开始) - 千与千寻

千寻的华尔兹(千寻のワルツ)

千寻的华尔兹_华尔兹_钢琴谱_钢琴谱分享_娱乐_音乐

久石让宫崎骏动漫作品视听音乐会千寻的华尔兹

千与千寻千寻的华尔兹重新开始

随机推荐

发现更多精彩图片

tfboys开工照 三枚花美男引迷妹舔屏他们的成名史羡煞旁人

中国美女演员对比,当蒋勤勤遇上陈红,谁的古装更惊艳!

少女内衣无钢圈学生青春期小学初中高中发育期薄款运动背心2件装

王者荣耀头像522新英雄干将莫邪庞统庄周与大乔韩信赵云

新的19年奔驰e300l时尚型车况无重大事故精品

权威信息发布中心,历史文化传承基地,百万网友互动平台,欢迎关注"

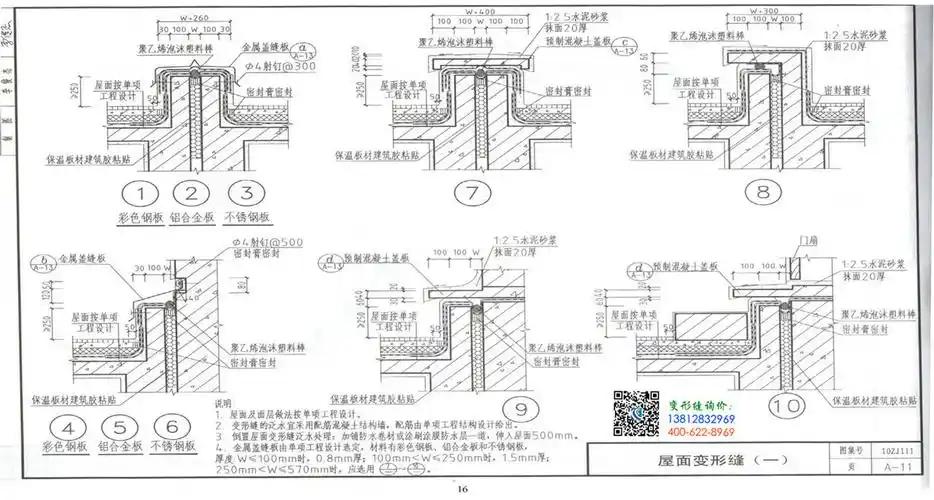
11zj111变形缝建筑构造第16页_11zj111屋面变形缝(一)_11zj111图集a

24寸后仰式扒胎机辅助臂拆胎机汽车轮胎拆装机汽保工具特卖秒杀

简笔画教程|百事可乐97 今日份肥宅快乐水已送达 绘画工具:ipad air

wechat头像 | 黑猫警长头像_男女_来自_网络