酒店标准间设计ppt

高清图片下载 免费 安全无风险
酒店标准间设计ppt

酒店标准间设计ppt

点击图片查看原图

图片信息

  • 格式: JPG
  • 尺寸: 920x690
  • 大小: 约1.2MB

版权声明

相关标签

自然风光 高清壁纸 4K画质

分享图片

相关推荐

基于当前图片的相似推荐

2017宾馆标准间平面图大全

酒店标间装修设计cad施工图

超豪华双人卧室平面布置△豪华双人床4.

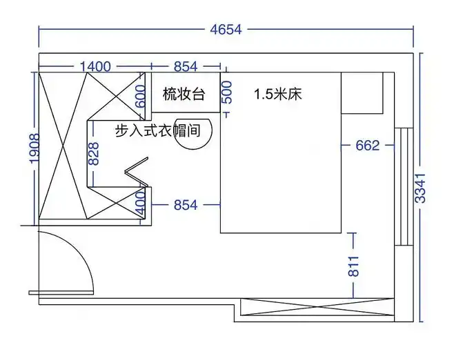
救救孩子吧,请问这个次卧可以做衣帽间吗,标好了尺寸

请问这种平面图是用什么软件做出来的呀?

一个酒店标间设计的25种思路

内江酒店设计公司|内江精品酒店设计方案解读|新东家设计

奥园湖畔一号31栋户型面积及详细标尺

卫生间的布置原则(总结)05五.

我把酒店标准间改成了29㎡宜家小公寓

随机推荐

发现更多精彩图片

我不清楚的-聊天表情-搞笑图片表情包-表情包网站

人间芭比程潇上围丰满傲人被称奶潇已活成一个笑话

长沙市国土空间总体规划20212035年今起公示

小女生卧室设计床头背景墙装修效果图片

韩国知名rapper大盘点有你喜欢的菜吗

徐州汉文化景区,国内最大的汉文化主题公园_狮子山_楚王陵_兵马俑

骏联车行2019年全新川崎kx250f

sheridan喜来登男士商务牛皮单肩斜挎公文包nl210936s黑色