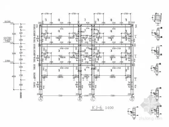
非框架梁纵向配筋构造节点大样图免费下载 - 混凝土结构 - 土木工程网

高清图片下载 免费 安全无风险
非框架梁纵向配筋构造节点大样图免费下载 - 混凝土结构 - 土木工程网

非框架梁纵向配筋构造节点大样图免费下载 - 混凝土结构 - 土木工程网

点击图片查看原图

图片信息

  • 格式: JPG
  • 尺寸: 1053x756
  • 大小: 约1.2MB

版权声明

相关标签

自然风光 高清壁纸 4K画质

分享图片

相关推荐

基于当前图片的相似推荐

4层框架结构幼儿园设计【含cad图纸 文档】

预应力预制框架结构设计及应用——结构设计

北京6层框架结构综合楼建筑结构水暖电图纸

[学士]五层框架结构教学楼毕业设计(建筑图 结构图 详细计算书)

最新一榀框架配筋图.dwg

钢筋砼框架结构的构造

五层钢筋砼全现浇框架结构设计

随机推荐

发现更多精彩图片

30付出了真心却换来伤心最后只剩下寒心流不尽的伤心泪何时才能了却

真人高清最新版好看的qq情侣头像陪你这一程无畏到无悔

罗小白街头架子鼓表演《离开地球表面》,帅气十足!

许巍老婆个人资料简介 周雨彤身高体重年龄照片个人资料背景简介 周雨

倒影(风景静态壁纸) - 静态壁纸下载 - 元气壁纸

【#收留17岁少年反遇害房东儿子发声#:警方说他是看着我父亲咽气才

喜鸭鸭短视频10苟富贵勿相忘

茶山上的茶树生长良好,期待第一口信阳毛尖春茶呀

点评列表-香烟点评-烟酒店点评-卷烟评论大全-烟草公司评价-近一年

有一种兄弟情义叫博伊卡和小黑

cdr怎么做银色拉丝效果?