商品混凝土按图结算砼工程量怎么算看完就知道

高清图片下载 免费 安全无风险
商品混凝土按图结算砼工程量怎么算看完就知道

商品混凝土按图结算砼工程量怎么算看完就知道

点击图片查看原图

图片信息

  • 格式: JPG
  • 尺寸: 550x358
  • 大小: 约1.2MB

版权声明

相关标签

自然风光 高清壁纸 4K画质

分享图片

相关推荐

基于当前图片的相似推荐

黄色为梁垫绿色是基础梁那我这个一层底板是筏板还是有梁板

请问钢梁下的梁垫钢板需要计算工程量吗

工人朋友正在垫梁垫块,每处都有自己的方法,有的是垫梁底,我们这边垫

请问这样的梁垫和梁垫钢筋怎么画

钢制作,立柱由80(90)×60(70)Ω型钢表面冲菱形孔而成,横梁由80×50

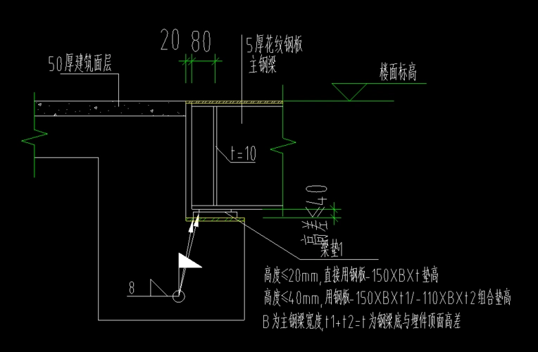
请问这个图纸上梁垫高该怎么看是整个梁垫高还是只是有标识的地方垫高

随机推荐

发现更多精彩图片

关于最近网上流传的saber虎头钳

2019抖音好看的情侣头像一男一女抖音情侣头像一男一女2019最新

红旗红简谱_简谱大全_zzmao简谱网

男生栗子头发型 男生栗子头发型都能怎么剪

活动作品增广贤文第37集今朝有酒今朝醉明日愁来明日忧路逢险处须回避

迈向战争之路21939纳粹德国的自爆宿命

😍🔥看着这些壁纸,仿佛能听到机车的轰鸣声,感受到那种驰骋在公路

2022生态家居同款浴室挡水板日本水槽挡水板厨房水池洗碗池洗菜盆神器

这就是,[黄金体验镇魂曲]!

金蛇狂舞 扬琴配 常青民乐

动物篇(23.5)·虻叮咬,重口慎入