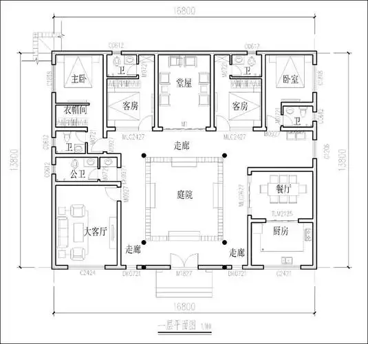
农村四合院自建房设计图

高清图片下载 免费 安全无风险
农村四合院自建房设计图

农村四合院自建房设计图

点击图片查看原图

图片信息

  • 格式: JPG
  • 尺寸: 921x735
  • 大小: 约1.2MB

版权声明

相关标签

自然风光 高清壁纸 4K画质

分享图片

相关推荐

基于当前图片的相似推荐

9m 第2套:二层四合院别墅 设计尺寸:24m×12.8m 设计面积:210.

农村四合院别墅设计,带庭院 96农村建房很多人都想有个院子,在院中

农村四合院别墅设计图重归儿时院子生活

四合院 - 热门商品专区

12×20米的宅基地,盖个四合院,如何设计?

接地气的四合院才是中国最美的房子典雅大气韵味十足在乡下建一栋雅墅

最美不过四合院10套四合院设计分享图文

宅基地宽二十八米长二十一米想建个中式四合院该怎么设计

新型四合院房屋设计图

四合院中国人眼里最美的房子这3栋四合院没人敢说你土

土灶车库湖南湘潭大进深实用型中式四合院布局怎样

石家庄四合院项目 面宽16.0米 进深39.0米

随机推荐

发现更多精彩图片

广陵李仆射借示近诗因投献

楼晚##贺峻霖2024 霖声漫漫扬四海

时局图里动物代表什么国家 各自代表: 熊——俄国——占东三省地方

前方高能,一大波别墅文化石外墙铺贴案例来了

关羽陵墓终于出土重点除了青龙偃月刀其中一具女尸竟是四大美女_貂蝉

【mymo爱分享】十妙招打造宝宝黄金性格

which green-car technology will matter least in 2025?

标签大全三室一厅装修效果

埃塞俄比亚女孩脸上长蜜瓜大小瘤子,好心医生无偿摘除|埃塞俄比亚

非常完美牵手曹赢心洪尧为出名炒作如今拍拖吴谨言