双曲拱桥加固改造技术规程cecs3192012

高清图片下载 免费 安全无风险
双曲拱桥加固改造技术规程cecs3192012

双曲拱桥加固改造技术规程cecs3192012

点击图片查看原图

图片信息

  • 格式: JPG
  • 尺寸: 518x337
  • 大小: 约1.2MB

版权声明

相关标签

自然风光 高清壁纸 4K画质

分享图片

相关推荐

基于当前图片的相似推荐

您的问题答复如下:【追问】请问老师有没有拱圈和拱胎的图片?

图11-3 拱圈环形裂缝处理

钢筋混凝土拱涵拱圈钢筋构造图

净跨18米拱圈钢筋构造图

回转窑窑拱圈楔入耐火砖,楔紧钢板的砌筑方法

砌完后再分部进行填 筑;实腹式拱上建筑一般在卸架前进行;砌筑实腹拱

模板支架拱架设计制作安装

图,拱肋及钢筋构造图,横隔板及加强横梁构造图,主拱圈施工加载示意图

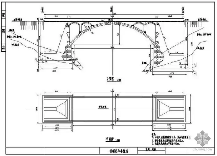
关键词: 路桥工程图纸实腹式石拱桥图纸主拱圈放样图

1.桥型总体布置图 2.桥台构造图 3.拱圈坐标表 4.

随机推荐

发现更多精彩图片

友友们,我妈妈七十三了耳朵里科肿瘤,要这么才能切除这科肿瘤呢.

鞠婧祎现身机场,大棉衣配条纹t恤帅气满分,坐姿更是霸气十足_造型

北欧风格式装修其中,中国的明式家具位居世界家具首位.

泰国偶遇洪欣,又高又瘦,白的发光 52岁的颜值气质都无可挑剔!

越南传统服装 奥黛--2

古典演出服飘逸伞舞扇子成人套装中国国风青花瓷连衣裙

收藏/分享 动漫情侣头像/古风/戏曲/花旦/自己换了个黄底的hh

安阳食品包装盒包装箱促销 身边的印制专家

最轻的14.5毫米空中杀手是我国研制的:威力无穷的02式高射机枪

2021年很感人的暗恋情书

脚出汗 华佗膏 3盒【脚趾瘙痒】推荐多盒疗程使用 收藏加购 优先发货

吴亦凡惊现"吻痕",怎么从医学角度分辨是不是真的