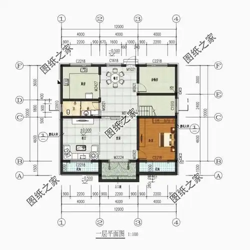
农村四间房屋设计图经典户型,这样设计美观,实用_二层别墅设计图_图纸

高清图片下载 免费 安全无风险
农村四间房屋设计图经典户型,这样设计美观,实用_二层别墅设计图_图纸

农村四间房屋设计图经典户型,这样设计美观,实用_二层别墅设计图_图纸

点击图片查看原图

图片信息

  • 格式: JPG
  • 尺寸: 750x562
  • 大小: 约1.2MB

版权声明

相关标签

自然风光 高清壁纸 4K画质

分享图片

相关推荐

基于当前图片的相似推荐

农村120平方房屋格局设计图,设计师推荐,你喜欢哪一套呢? -靓价房

7字型农村自建房设计图-七字型农村房子好不好?-建房圈

经典北方农村房屋设计图_装修123效果图

两层新农村房屋设计图片_装修123效果图

8米x13米三层农村房子设计,新中式外观清新淡雅-建房圈

新农村住宅设计图纸_农村单层平房设计图-正华文库

农村二层楼房设计图纸平面图,选一款收藏回家盖房!

新农村房子设计图(10套图纸附预算) - 科猫网

主体20多万的农村二层自建房屋设计图,有人看了竟然说值100多万!-科技

9012年了,谁还会住小平房 -别墅设计-乡村房子设计图-农村自建房设计

三间两层农村楼房设计图,气势上就胜人一筹

100平米农村平房房屋格局设计图_装信通网效果图

随机推荐

发现更多精彩图片

p data-id="gnbwvj9i41">狮舞,又称"狮子舞","狮灯","舞狮","舞狮子"

民间硬笔书法高手写行书一气呵成形神兼备工工整整着实好看

网络男神网图 男神头像帅气

是来自捷克共和国的贵族香气啤酒花

冷却水节温器2thermoatforcoolingwater

第三种 赛罗奥特曼月神奇迹形态融合了戴拿奥特曼强力形态和高斯

其它 瘿木——树瘤 写美篇柳树装饰着我们绿色的家园

矮蒲苇是一种草本植物,植株高度大约在1-1.