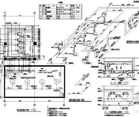
室内消火栓双栓带软管卷盘消防箱尺村

高清图片下载 免费 安全无风险
室内消火栓双栓带软管卷盘消防箱尺村

室内消火栓双栓带软管卷盘消防箱尺村

点击图片查看原图

图片信息

  • 格式: JPG
  • 尺寸: 487x463
  • 大小: 约1.2MB

版权声明

相关标签

自然风光 高清壁纸 4K画质

分享图片

相关推荐

基于当前图片的相似推荐

关键词:市政给排水施工图水泵房大样图文件 224kb格

室内消火栓12s4-16安装图集

48地下消防泵房设备布置

【消火栓安装图集cad版本】 带灭火器箱组合式消防柜(丙丁型)

北京某国际商业中心消防泵房详图

谁有12s4消防图集-服务新干线答疑解惑

消防水泵房大样图免费下载 - 独立泵房及机房图 - 土木工程网

随机推荐

发现更多精彩图片

60岁倪大红近照,隐瞒了31年的老婆,原来是我们熟悉的她_倪炜_因为

国内有批文的玻尿酸是哪些?

歌手,唱作人@陈意涵estelle今日《百分百歌手》舞台,正在播出78

手绘线描黑白动物矢量图下载

双汇火腿肠整箱鸡肉58g50支淀粉粉肠油炸王中王包装即食肠类

胚胎分割 powerpoint 演示文稿ppt

历史上的今天老子制造4月29日

《非诚勿扰》女嘉宾全是托,拿了工资还包吃住

挣扎——二战末期纳粹德国的末日枪械大盘点_希特勒_突击步枪_战争

anta 安踏 男 篮球系列 篮球鞋 11341155

嫌小户型餐厅又小又挤那是你不会弄聪明人都这样做